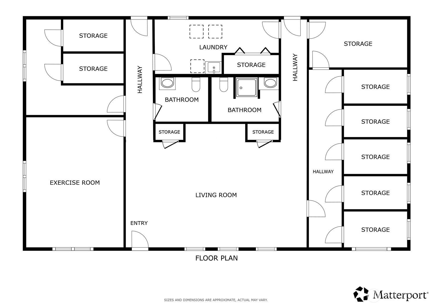
Own a piece of local history with this versatile 2,160-square-foot commercial building, home to the iconic Hairsmith barber shop for the past 40 years. This property offers a rare combination of community legacy and modern business potential, perfectly situated on a high-traffic roadway that ensures maximum brand exposure. The prominent signage acts as a permanent billboard for your business, catching the eyes of thousands of daily commuters in a bustling corridor. Inside, the layout is designed for maximum functionality. The generous floor plan includes two well-maintained bathrooms, a dedicated private office, and a convenient laundry area—an essential feature for salons, medical clinics, or service-based industries. While it served as a single successful shop for decades, the building is suited for multi-tenant use, providing a fantastic opportunity for an owner-user to occupy one suite while generating rental income from another. The property benefits from flexible zoning that allows for a multitude of uses, from professional offices and retail boutiques to specialty medical suites or continued salon services. Opportunities with this level of historical stability, prime road frontage, and diverse usage potential are rare. Bring your vision to a location that has already proven its ability to thrive for nearly half a century. Buyer to conduct due diligence to their own satisfaction.
Listing Provided Courtesy of Graham Raymond Northcott, Redfin
General Information
NWM2479723
Commercial Industrial
5
DOM
0.32 acres
0
1977
Busines
Clallam
Commercial Sale
Commercial Industrial
Listing Provided Courtesy of Graham Raymond Northcott, Redfin
Krishna Realty data last checked: Mar 16, 2026 06:21 | Listing last modified Feb 18, 2026 01:00,
Source:
Own a piece of local history with this versatile 2,160-square-foot commercial building, home to the iconic Hairsmith barber shop for the past 40 years. This property offers a rare combination of community legacy and modern business potential, perfectly situated on a high-traffic roadway that ensures maximum brand exposure. The prominent signage acts as a permanent billboard for your business, catching the eyes of thousands of daily commuters in a bustling corridor. Inside, the layout is designed for maximum functionality. The generous floor plan includes two well-maintained bathrooms, a dedicated private office, and a convenient laundry area—an essential feature for salons, medical clinics, or service-based industries. While it served as a single successful shop for decades, the building is suited for multi-tenant use, providing a fantastic opportunity for an owner-user to occupy one suite while generating rental income from another. The property benefits from flexible zoning that allows for a multitude of uses, from professional offices and retail boutiques to specialty medical suites or continued salon services. Opportunities with this level of historical stability, prime road frontage, and diverse usage potential are rare. Bring your vision to a location that has already proven its ability to thrive for nearly half a century. Buyer to conduct due diligence to their own satisfaction.