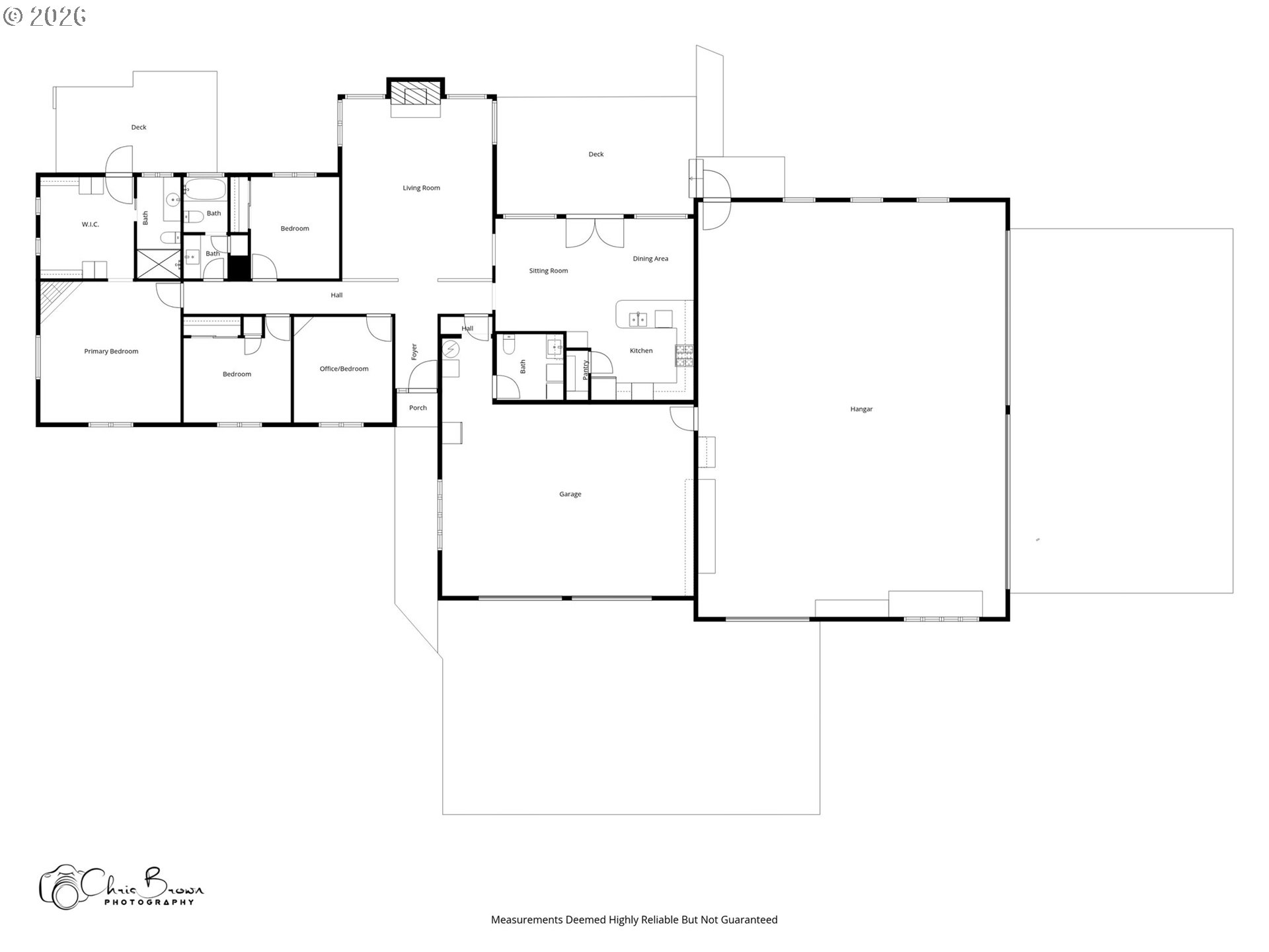
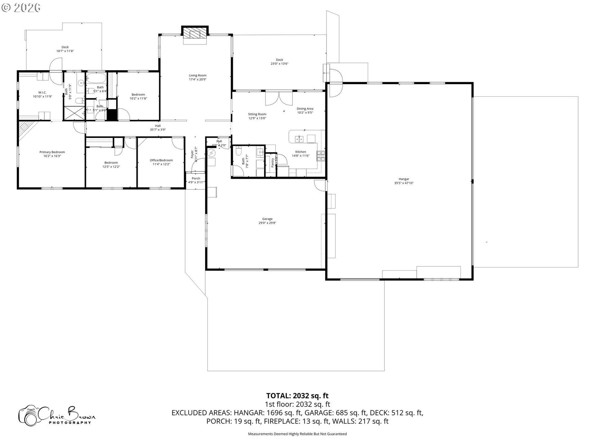
If you’re a pilot and aviation is your passion, don’t miss this chance to live directly on the airstrip with front row seating of every take-off and landing! Welcome to Workman Airpark (OR41) in Canby, Oregon — a unique aviation community where you can keep your aircraft at home. This beautifully updated single-level home offers thoughtfully designed living with custom hardwood floors and built-in cabinetry throughout. The step-down living room features vaulted ceilings, abundant natural light, and a striking floor-to-ceiling stone wood-burning fireplace. The gourmet kitchen includes stainless steel appliances, a gas cooktop, warming drawer, panty, dining area, granite counters with an eating bar, and a cozy TV nook.French doors open to a spacious deck overlooking the airstrip—perfect for barbecues and sunsets. The home offers 4 bedrooms (one currently an office with custom built-ins), 2.5 baths, and a spacious primary suite with a gas fireplace, dual walk-in closets, and a private deck ready for a hot tub. Pride of ownership shines throughout.Enjoy a manicured and mature low-maintenance landscape on a full acre. Tons of storage starts with a large shed, a deep attached garage (includes laundry and half bath). The attached 48’ x 36’ hangar offers direct airstrip frontage and includes 11’ high doors, a 10’6” RV entry, built-in shelving, air compressor, natural light, two 20’ electric doors, and a movable center post. The 2,200+ foot long lighted grass runway with gravel underlay provides year-round access for your flights. HOA dues of $900 a year includes all house & garden water use, airstrip maintenance and insurance. Conveniently located near other aviation communities and public airports — this is a rare opportunity to live, fly, and enjoy it all! Fly Home!
Listing Provided Courtesy of Connie Knittel, All County Real Estate
General Information
239600840
SingleFamilyResidence
1
DOM
3
1.02 acres
2.5
1849
1979
RRFF5
Clackamas
01013977
Ninety-One
Ninety-One
Canby 5/10
Residential
SingleFamilyResidence
2192 WORKMANS AIRPARK #2 LT 4 BLK 4
Listing Provided Courtesy of Connie Knittel, All County Real Estate
Krishna Realty data last checked: Apr 06, 2026 03:53 | Listing last modified Apr 05, 2026 21:09,
Source:
If you’re a pilot and aviation is your passion, don’t miss this chance to live directly on the airstrip with front row seating of every take-off and landing! Welcome to Workman Airpark (OR41) in Canby, Oregon — a unique aviation community where you can keep your aircraft at home. This beautifully updated single-level home offers thoughtfully designed living with custom hardwood floors and built-in cabinetry throughout. The step-down living room features vaulted ceilings, abundant natural light, and a striking floor-to-ceiling stone wood-burning fireplace. The gourmet kitchen includes stainless steel appliances, a gas cooktop, warming drawer, panty, dining area, granite counters with an eating bar, and a cozy TV nook.French doors open to a spacious deck overlooking the airstrip—perfect for barbecues and sunsets. The home offers 4 bedrooms (one currently an office with custom built-ins), 2.5 baths, and a spacious primary suite with a gas fireplace, dual walk-in closets, and a private deck ready for a hot tub. Pride of ownership shines throughout.Enjoy a manicured and mature low-maintenance landscape on a full acre. Tons of storage starts with a large shed, a deep attached garage (includes laundry and half bath). The attached 48’ x 36’ hangar offers direct airstrip frontage and includes 11’ high doors, a 10’6” RV entry, built-in shelving, air compressor, natural light, two 20’ electric doors, and a movable center post. The 2,200+ foot long lighted grass runway with gravel underlay provides year-round access for your flights. HOA dues of $900 a year includes all house & garden water use, airstrip maintenance and insurance. Conveniently located near other aviation communities and public airports — this is a rare opportunity to live, fly, and enjoy it all! Fly Home!