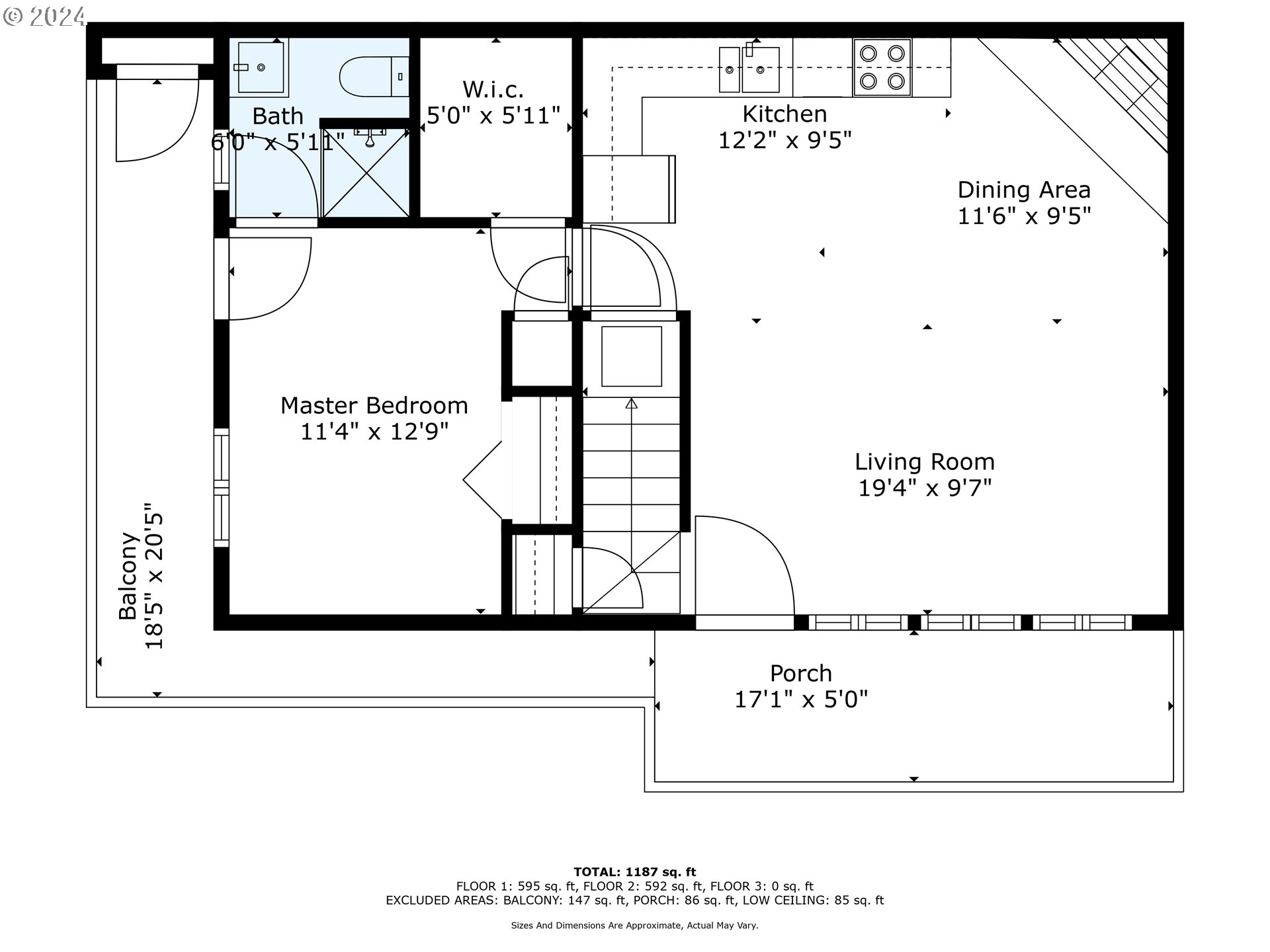
Discover the perfect blend of comfort, adventure, and investment potential in this charming Government Camp cabin! This spacious 3-bedroom, 2-bathroom cabin can accommodate up to 10 guests, making it ideal for family gatherings, friend getaways, or as an attractive investment property. With sought-after proximity to year-round outdoor activities, it’s just steps from hiking and biking trails, skiing, snowshoeing, lakes, and so much more.Upon entering, you’re welcomed by open beams and a cozy yet spacious atmosphere that’s thoughtfully designed for relaxation and entertaining. The inviting living area, centered around a warm fireplace, is perfect for cozy evenings in after a day of outdoor fun. For larger groups, a generous bunk room offers plenty of space for everyone to spread out, making this a fantastic retreat for multi-generational families or groups of friends.The well-equipped kitchen features modern appliances and everything you need to prepare homemade meals with ease. Whether it’s a winter wonderland retreat or a summer mountain escape, this cabin offers all the conveniences of home and then some.Nestled in a prime location in Government Camp, this cabin is a tranquil retreat while keeping you close to the town’s quaint eateries, entertainment, and family-friendly activities. Whether you're looking for a peaceful retreat, a base for endless outdoor adventures, or an investment opportunity with fantastic rental potential, this cabin is the perfect choice. Don’t miss out on this rare chance to own a piece of mountain paradise—schedule your viewing today and make your mountain escape a reality! This Government Camp property has no rental restrictions or rental cap.
Listing Provided Courtesy of Amy Rice, Windermere Realty Trust
General Information
450589964
Condominium
450
DOM
3
2
1187
1972
Clackamas
00993447
Welches
Welches
Sandy
Residential
Condominium
EDELWEISS CONDO PHASE 2 UNIT 8
Listing Provided Courtesy of Amy Rice, Windermere Realty Trust
Krishna Realty data last checked: Feb 22, 2026 03:42 | Listing last modified Feb 11, 2026 15:56,
Source:
Discover the perfect blend of comfort, adventure, and investment potential in this charming Government Camp cabin! This spacious 3-bedroom, 2-bathroom cabin can accommodate up to 10 guests, making it ideal for family gatherings, friend getaways, or as an attractive investment property. With sought-after proximity to year-round outdoor activities, it’s just steps from hiking and biking trails, skiing, snowshoeing, lakes, and so much more.Upon entering, you’re welcomed by open beams and a cozy yet spacious atmosphere that’s thoughtfully designed for relaxation and entertaining. The inviting living area, centered around a warm fireplace, is perfect for cozy evenings in after a day of outdoor fun. For larger groups, a generous bunk room offers plenty of space for everyone to spread out, making this a fantastic retreat for multi-generational families or groups of friends.The well-equipped kitchen features modern appliances and everything you need to prepare homemade meals with ease. Whether it’s a winter wonderland retreat or a summer mountain escape, this cabin offers all the conveniences of home and then some.Nestled in a prime location in Government Camp, this cabin is a tranquil retreat while keeping you close to the town’s quaint eateries, entertainment, and family-friendly activities. Whether you're looking for a peaceful retreat, a base for endless outdoor adventures, or an investment opportunity with fantastic rental potential, this cabin is the perfect choice. Don’t miss out on this rare chance to own a piece of mountain paradise—schedule your viewing today and make your mountain escape a reality! This Government Camp property has no rental restrictions or rental cap.
Similar Properties
Download our Mobile app
$420,000
1 Bed
1 Bath
697 SqFt
76 DOM
87557 E GOVERNMENT CAMP LOOP 204,
Government Camp, 97028
$919,000
3 Bed
2 Bath
1860 SqFt
100 DOM
31252 E COLLINS LAKE RD,
Government Camp, 97028
$650,000
2 Bed
2.5 Bath
1248 SqFt
121 DOM
87926 E ALPENGLOW LN 61,
Government Camp, 97028
$875,000
3 Bed
2 Bath
1876 SqFt
122 DOM
31254 E COLLINS LAKE RD 22,
Government Camp, 97028