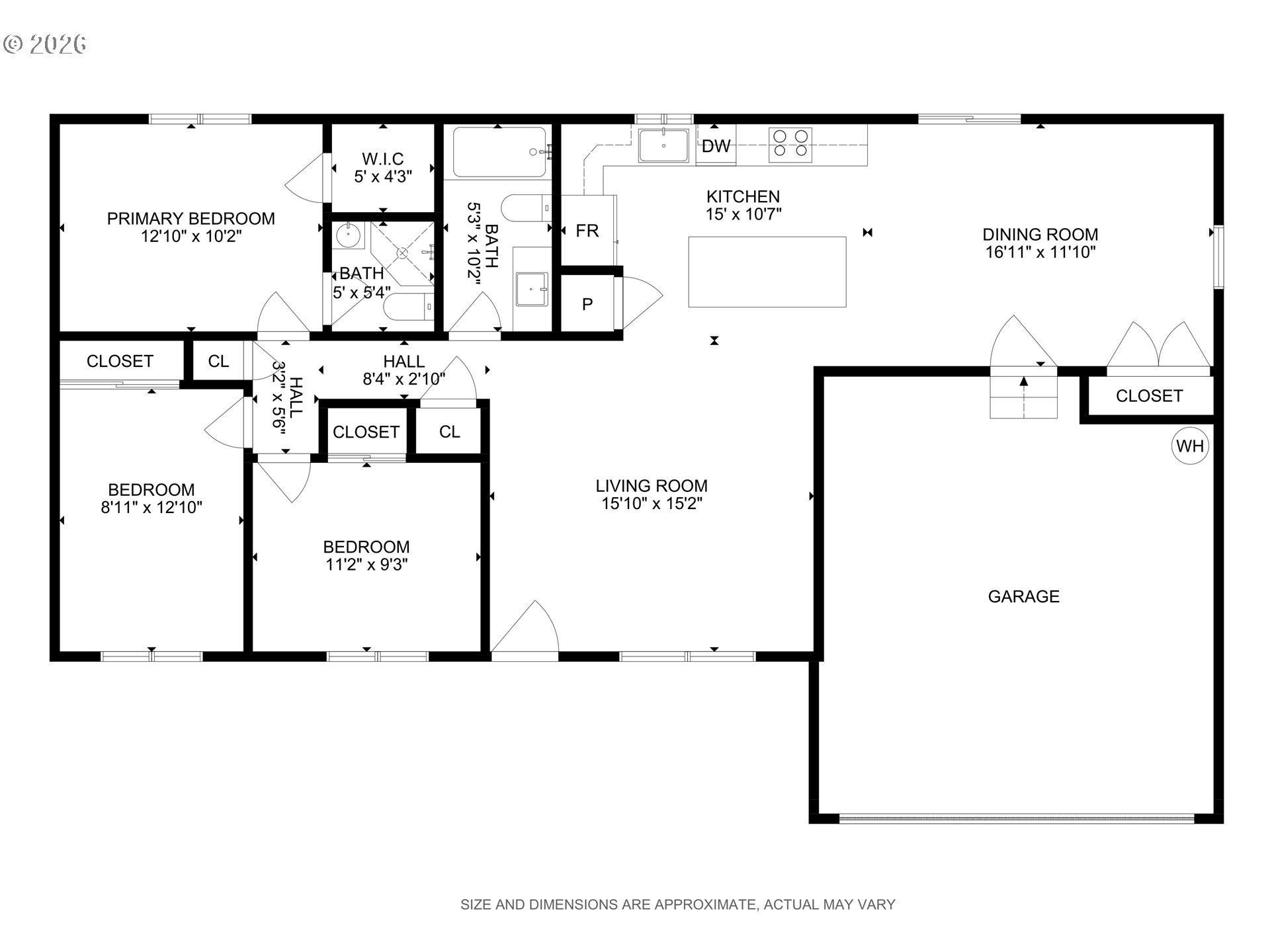
Move-in ready, fully updated single-level ranch offering a functional layout with modern finishes throughout. New Luxury vinyl plank flooring and a light, neutral palette create a bright and inviting interior. Kitchen features new cabinetry, quartz countertops, SS appliances, island, pantry and more! Spacious main living areas with cozy fireplace in living room. The primary suite includes an en-suite bath with a tiled shower and walk-in closet. All new interior/exterior paint, trim, fixtures and more! Newer windows and central air HVAC system. Large fully fenced yard with concrete patio, new landscaping and a shed/workshop for storage or hobbies. All new stamped concrete driveway and walkways! Gated RV Parking! Ideally located across from River Mill Elementary in a quiet neighborhood and minutes from downtown Estacada, this home combines comfort, convenience, and value. Schedule your showing today!
Listing Provided Courtesy of Daniel Belza, Real Broker
General Information
497809448
SingleFamilyResidence
1
DOM
3
2
1176
1978
Clackamas
00934555
Clackamas River 3/10
Estacada 5/10
Estacada 5/10
Residential
SingleFamilyResidence
2281 CARLTON ESTATES LT 3
Listing Provided Courtesy of Daniel Belza, Real Broker
Krishna Realty data last checked: Mar 25, 2026 02:31 | Listing last modified Mar 24, 2026 16:54,
Source:
Move-in ready, fully updated single-level ranch offering a functional layout with modern finishes throughout. New Luxury vinyl plank flooring and a light, neutral palette create a bright and inviting interior. Kitchen features new cabinetry, quartz countertops, SS appliances, island, pantry and more! Spacious main living areas with cozy fireplace in living room. The primary suite includes an en-suite bath with a tiled shower and walk-in closet. All new interior/exterior paint, trim, fixtures and more! Newer windows and central air HVAC system. Large fully fenced yard with concrete patio, new landscaping and a shed/workshop for storage or hobbies. All new stamped concrete driveway and walkways! Gated RV Parking! Ideally located across from River Mill Elementary in a quiet neighborhood and minutes from downtown Estacada, this home combines comfort, convenience, and value. Schedule your showing today!