Wilsonville, 97070
4 Bed
3.5 Bath
3815 SqFt
200 DOM
Built: 1978
$1,350,000
Price cut: $29K (10-02-2025)
$1350000
Price cut: $29K (10-02-2025)
4 Bed
3.5 Bath
3815 SqFt
200 DOM
Built: 1978
Principal Broker
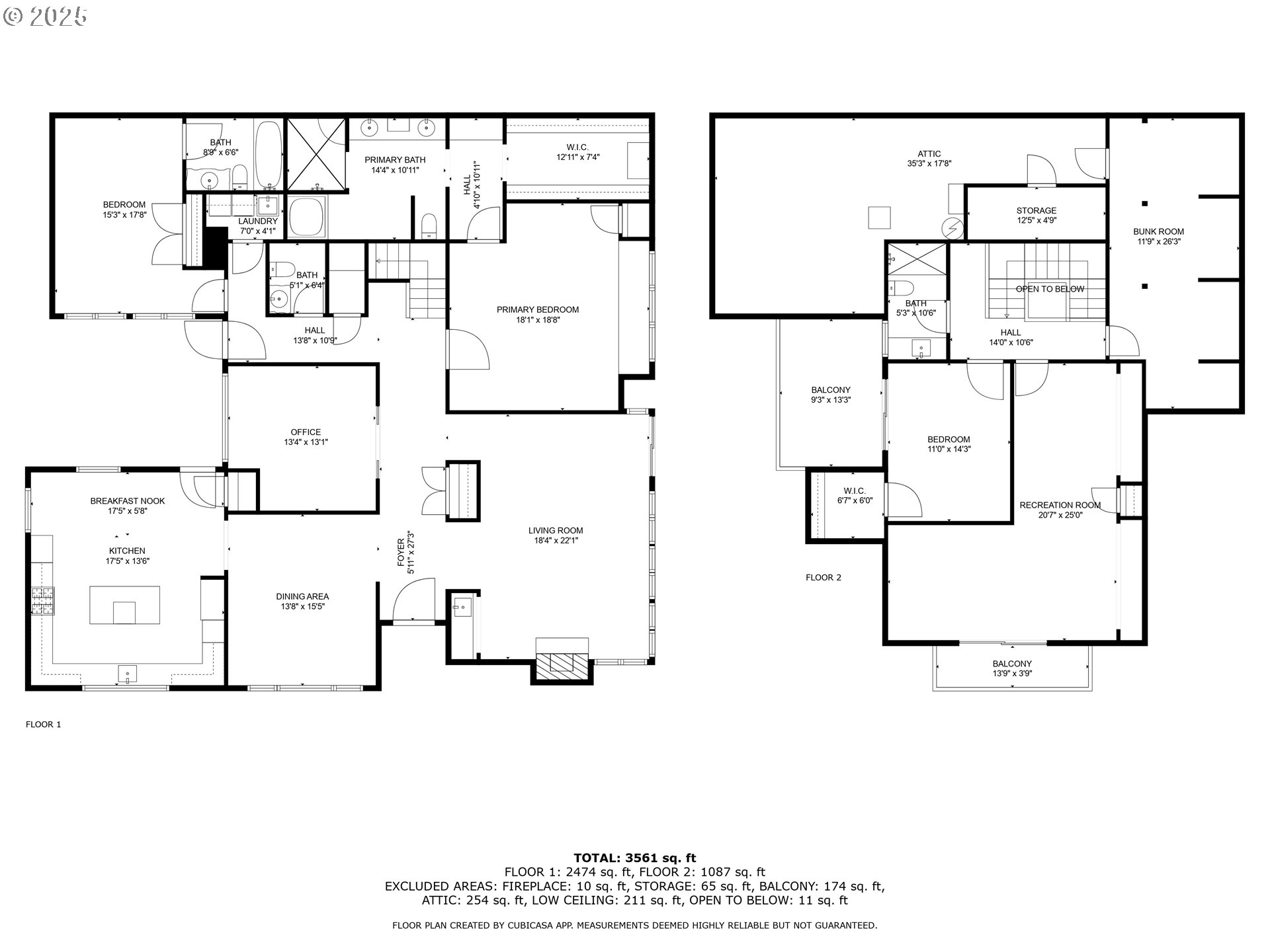
(503) 893-8874This wonderfully remodeled and updated Charbonneau Belvedere floor plan has multiple views of the Green Course, pond, and clubhouse. Upgrades include highly desirable Split Plantation Shutters so that you enjoy your view but protect your privacy. The grand living room with vaulted ceilings includes a wet bar, fireplace, and oversized windows offering an abundance of natural light that provides a peaceful and relaxing view of the lush grass, water feature and Hole #9. The Chef's kitchen includes a 6 burner gas stove, double ovens, built in subzero fridge, large quartzite island and countertops. Step out of the kitchen into your expansive private courtyard with the soothing sound of the multi-tiered fountain and surrounding landscape. Outdoor living space includes a gas line for your barbecue. Enjoy having two primary suites on the main level with one having a jetted step in tub and step in shower. Also includes a walk-in closet. You will also appreciate the spacious office/family room with pocket doors on the main level. Laundry area on the main floor. Plenty of room for your guests with custom built-in bunks and drawers. Upstairs decks with commanding views of the golf course. You will appreciate having that hard to find 3 car garage with covered walkway to the house. Don't miss this rare opportunity to live in one of the best locations in Charbonneau directly across from the 9th hole / driving range, shops and restaurants in the Village Center along with the Sports Club, Activities Center, and Charbonneau County Club. Take advantage of the boat and paddle slips along the Willamette for summer fun. RV parking is optional. You will also appreciate the large new dog park and several pools.
Listing Provided Courtesy of Tom Wilser, Premiere Property Group, LLC
632353521
Attached
200 DOM
4
9583.2 SqFt
3.5
3815
1978
Clackamas
00827412
Eccles
Baker Prairie
Canby
Residential
Attached
2291 CHARBONNEAU V1 LT M17
Listing Provided Courtesy of Tom Wilser, Premiere Property Group, LLC
Krishna Realty data last checked: Dec 25, 2025 17:02 | Listing last modified Dec 10, 2025 19:43,
Source:
Download our Mobile app
1341
2474
0
3815
Seller
3815
1/Gas
4
3
1
3.5
Composition
3, Detached, ExtraDeep, Oversized
CustomStyle,Traditional
Driveway,OffStreet
2
1978
No
LapSiding
DoublePaneWindows,Vi
Commons, ExteriorMain
Fireplace, HardwoodFloors
BuiltinRefrigerator, Dishwasher, Disposal, DoubleOven, FreeStandingGasRange, GasAppliances, IndoorGrill, Is
GarageDoorOpener, HardwoodFloors, HighCeilings, JettedTub, Laundry, Marble, PlumbedForCentralVacuum, Soakin
CoveredDeck, CoveredPatio, Fenced, Garden, Patio, SecurityLights, Sprinkler, WaterFeature
AccessibleEntrance, GarageonMain, MainFloorBedroomBath, RollinShower, UtilityRoomOnMain
HeatPump
Gas
HeatPump
PublicSewer
Gas
Electricity, Gas
8925.32
1
382 / Month
119 / Month
Cash,Conventional
05-24-2025
No
No
200
215
Cash,Conventional
$1,399,000
$1,350,000
Dec 10, 2025 19:43
Listing courtesy of Premiere Property Group, LLC.
The content relating to real estate for sale on this site comes in part from the IDX program of the RMLS of Portland, Oregon.
Real Estate listings held by brokerage firms other than this firm are marked with the RMLS logo, and
detailed information about these properties include the name of the listing's broker.
Listing content is copyright © 2019 RMLS of Portland, Oregon.
All information provided is deemed reliable but is not guaranteed and should be independently verified.
Krishna Realty data last checked: Dec 25, 2025 17:02 | Listing last modified Dec 10, 2025 19:43.
Some properties which appear for sale on this web site may subsequently have sold or may no longer be available.
Principal Broker
(503) 893-8874This wonderfully remodeled and updated Charbonneau Belvedere floor plan has multiple views of the Green Course, pond, and clubhouse. Upgrades include highly desirable Split Plantation Shutters so that you enjoy your view but protect your privacy. The grand living room with vaulted ceilings includes a wet bar, fireplace, and oversized windows offering an abundance of natural light that provides a peaceful and relaxing view of the lush grass, water feature and Hole #9. The Chef's kitchen includes a 6 burner gas stove, double ovens, built in subzero fridge, large quartzite island and countertops. Step out of the kitchen into your expansive private courtyard with the soothing sound of the multi-tiered fountain and surrounding landscape. Outdoor living space includes a gas line for your barbecue. Enjoy having two primary suites on the main level with one having a jetted step in tub and step in shower. Also includes a walk-in closet. You will also appreciate the spacious office/family room with pocket doors on the main level. Laundry area on the main floor. Plenty of room for your guests with custom built-in bunks and drawers. Upstairs decks with commanding views of the golf course. You will appreciate having that hard to find 3 car garage with covered walkway to the house. Don't miss this rare opportunity to live in one of the best locations in Charbonneau directly across from the 9th hole / driving range, shops and restaurants in the Village Center along with the Sports Club, Activities Center, and Charbonneau County Club. Take advantage of the boat and paddle slips along the Willamette for summer fun. RV parking is optional. You will also appreciate the large new dog park and several pools.
Download our Mobile app