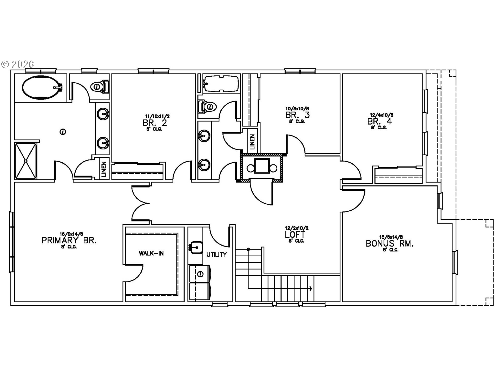
Home is under construction and will be ready mid-April. See sales rep for current promo. Step into this beautifully designed modern home featuring a bright, open-concept main level perfect for everyday living and entertaining. The spacious great room flows seamlessly into the dining area and kitchen, complete with a large island, ample cabinetry, and a generous walk-in pantry for all your storage needs. A dedicated main-floor office provides the ideal space for working from home, while the covered patio extends your living space outdoors.Upstairs, unwind in the private primary suite featuring a large walk-in closet, dual vanities, and a well-appointed ensuite bath. Three additional bedrooms offer flexibility for family, guests, or hobbies, along with a centrally located laundry room for added convenience. A versatile loft and separate bonus room create multiple options for relaxing, entertaining, or play.With thoughtful design throughout, including a 2-car garage, functional storage spaces, and modern layout, this home blends comfort, flexibility, and style for today’s lifestyle.
Listing Provided Courtesy of Travis Wolpin, Stone Bridge Realty, Inc
General Information
400589727
SingleFamilyResidence
21
DOM
4
2.5
3017
2026
Clackamas
05040919
Stafford
Meridian Creek 5/10
Wilsonville 7/10
Residential
SingleFamilyResidence
SUBDIVISION FROG POND OVERLOOK 4763 LT 15
Listing Provided Courtesy of Travis Wolpin, Stone Bridge Realty, Inc
Krishna Realty data last checked: Apr 08, 2026 05:54 | Listing last modified Mar 18, 2026 13:52,
Source:
Home is under construction and will be ready mid-April. See sales rep for current promo. Step into this beautifully designed modern home featuring a bright, open-concept main level perfect for everyday living and entertaining. The spacious great room flows seamlessly into the dining area and kitchen, complete with a large island, ample cabinetry, and a generous walk-in pantry for all your storage needs. A dedicated main-floor office provides the ideal space for working from home, while the covered patio extends your living space outdoors.Upstairs, unwind in the private primary suite featuring a large walk-in closet, dual vanities, and a well-appointed ensuite bath. Three additional bedrooms offer flexibility for family, guests, or hobbies, along with a centrally located laundry room for added convenience. A versatile loft and separate bonus room create multiple options for relaxing, entertaining, or play.With thoughtful design throughout, including a 2-car garage, functional storage spaces, and modern layout, this home blends comfort, flexibility, and style for today’s lifestyle.