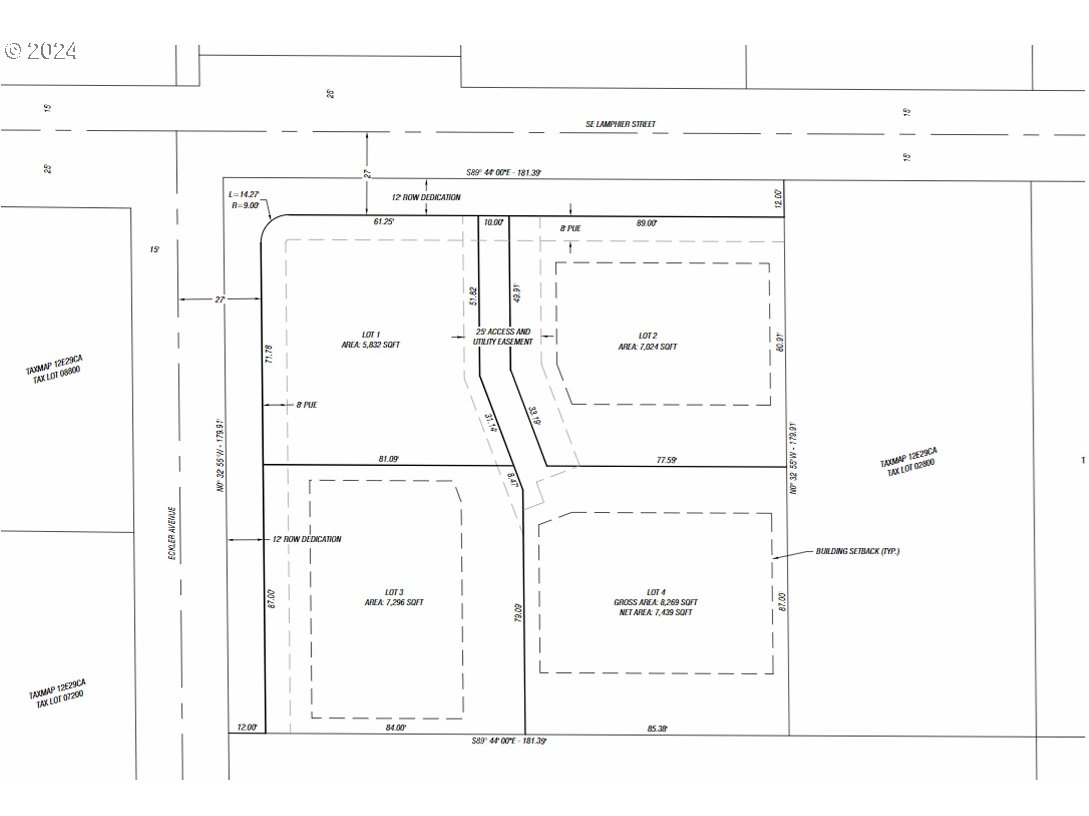
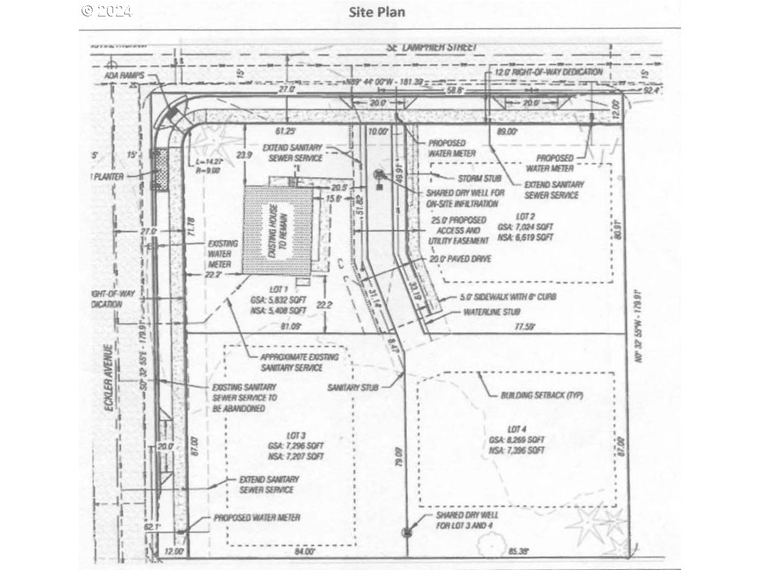
Rare opportunity to own a huge parcel of dividable land in Milwaukie! The site is unincorporated Clackamas County and includes the existing home which is currently income producing as a rental. Surveys are complete by Seller for a four lot subdivision and the project is ready to go with a county bond. The current proposed development allows for each of the land parcels to each have a single family or an attached home of 1-4 units, so you could potentially build 16 townhomes. the existing home sits on one parcel. Buyer to complete it's own due diligence. Existing home had new sewer 2018 and from 2019 had new roof, new gutters, new skylights, interior renovation, updates to wiring, new appliance and new interior and exterior paint.
Listing Provided Courtesy of Devin Bourne, Bespoke Realty
General Information
24384895
SingleFamilyResidence
405
DOM
3
0.75 acres
2
1458
1942
R7
Clackamas
00059885
Lewelling 2/10
Rowe 3/10
Milwaukie 7/10
Residential
SingleFamilyResidence
165 FINAVON PT LT 13
Listing Provided Courtesy of Devin Bourne, Bespoke Realty
Krishna Realty data last checked: Mar 16, 2026 09:56 | Listing last modified Jan 05, 2026 12:20,
Source:
Download our Mobile app
Residence Information
540
918
0
1458
GIS
1458
1/Gas
3
2
0
2
Composition
1, Detached
Stories2
2
1942
No
CementSiding
Features and Utilities
Dishwasher, FreeStandingGasRange, Tile
HardwoodFloors, TileFloor, WalltoWallCarpet
Yard
None
Gas
ForcedAir90
PublicSewer
Gas
Electricity
Financial
3926.57
0
Cash,Conventional
11-26-2024
2000
No
No
Comparable Information
405
475
Cash,Conventional
$1,150,000
$929,900
Jan 05, 2026 12:20
Schools
public Elementary : Lewelling
2/10Ratingspublic Middle : Rowe
3/10Ratingscharter High : Milwaukie
7/10Ratings
Rare opportunity to own a huge parcel of dividable land in Milwaukie! The site is unincorporated Clackamas County and includes the existing home which is currently income producing as a rental. Surveys are complete by Seller for a four lot subdivision and the project is ready to go with a county bond. The current proposed development allows for each of the land parcels to each have a single family or an attached home of 1-4 units, so you could potentially build 16 townhomes. the existing home sits on one parcel. Buyer to complete it's own due diligence. Existing home had new sewer 2018 and from 2019 had new roof, new gutters, new skylights, interior renovation, updates to wiring, new appliance and new interior and exterior paint.