Lake Oswego, 97034
3 Bed
2.5 Bath
2331 SqFt
130 DOM
Built: 1992
$775,000
Price cut: $40K (01-07-2026)












































$775000
Price cut: $40K (01-07-2026)
3 Bed
2.5 Bath
2331 SqFt
130 DOM
Built: 1992
Principal Broker
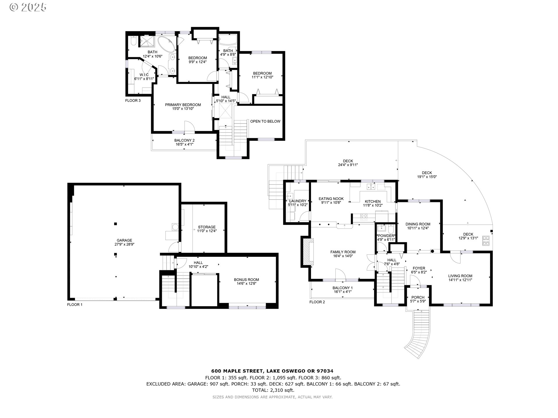
(503) 893-8874Radiating curb appeal and tucked among tree-lined streets, this Lake Oswego retreat blends striking architecture with everyday comfort in one of the city’s most desirable neighborhoods. Vaulted ceilings, expansive windows and rich hardwood floors create light-filled interiors that feel open and inviting. The main level flows effortlessly between living, dining and family rooms; spaces designed for connection, entertaining and quiet moments. The kitchen impresses with slab granite counters, floating shelves accented with layered lighting, a built-in pantry and stainless-steel appliances, all wrapped in a cool, moody palette that feels refined yet relaxed. Just off the kitchen, a dining nook opens through sliding doors to an expansive deck framed by lush trees, perfect for morning coffee or evening gatherings. The spacious family room features a statement fireplace, custom built-ins and a private balcony. Upstairs, a light-filled stairway with a skylight and built-in bookshelves leads to a dramatic primary suite with vaulted ceilings, dual sliding barn doors, sleek tile flooring and serene tree views from a private balcony. The spa-inspired ensuite includes vessel sinks, a soaking tub and a tiled walk-in shower. Two additional bedrooms and a stylish hall bath complete the upper level. Downstairs, a versatile flex space is ideal for a gym, studio or home office. Outdoor living continues with an expansive composite deck surrounded by nature and sleek glass railings that modernize every balcony. An oversized two-car garage offers new doors, openers and ample space, even enough for a golf simulator! Added highlights include air conditioning, generator wiring, central vac and a Sonos outdoor sound system. Conveniently located to Hwy 43, with a path to George Rogers Park and moments from downtown Lake Oswego’s shops, restaurants and hot spots, this home embodies life’s best balance; city energy when you want it, a peaceful retreat when you need it!
Listing Provided Courtesy of Marie Boatsman, Berkshire Hathaway HomeServices NW Real Estate
493487675
SingleFamilyResidence
130 DOM
3
7840.8 SqFt
2.5
2331
1992
Clackamas
00266090
Hallinan 7/10
Lakeridge 9/10
Lakeridge 9/10
Residential
SingleFamilyResidence
79 SOUTH OSWEGO LT 4 BLK 5&VAC ST
Listing Provided Courtesy of Marie Boatsman, Berkshire Hathaway HomeServices NW Real Estate
Krishna Realty data last checked: Mar 17, 2026 02:28 | Listing last modified Mar 16, 2026 06:05,
Source:
Download our Mobile app
0
2331
0
2331
Tax ID
2331
1/Gas
3
2
1
2.5
Composition
2, ExtraDeep, Oversized
Contemporary,Traditional
Driveway
3
1992
No
CementSiding
Finished,PartialBasement
Finished,PartialBase
VinylFrames
Deck, ExteriorEntry, HardwoodFloors
Dishwasher, Disposal, FreeStandingRange, FreeStandingRefrigerator, Granite, Pantry, PlumbedForIceMaker, Sta
CentralVacuum, ConcreteFloor, GarageDoorOpener, Granite, HardwoodFloors, Laundry, Skylight, SoakingTub, Tile
Deck
CentralAir
Gas
ForcedAir
PublicSewer
Gas
Electricity, Gas
9165.7
0
Cash,Conventional,FHA,VALoan
11-05-2025
No
No
03-15-2026
130
130
Cash,Conventional,FHA,VALoan
$815,000
$775,000
Mar 16, 2026 06:05
Listing courtesy of Berkshire Hathaway HomeServices NW Real Estate.
The content relating to real estate for sale on this site comes in part from the IDX program of the RMLS of Portland, Oregon.
Real Estate listings held by brokerage firms other than this firm are marked with the RMLS logo, and
detailed information about these properties include the name of the listing's broker.
Listing content is copyright © 2019 RMLS of Portland, Oregon.
All information provided is deemed reliable but is not guaranteed and should be independently verified.
Krishna Realty data last checked: Mar 17, 2026 02:28 | Listing last modified Mar 16, 2026 06:05.
Some properties which appear for sale on this web site may subsequently have sold or may no longer be available.
Principal Broker
(503) 893-8874Radiating curb appeal and tucked among tree-lined streets, this Lake Oswego retreat blends striking architecture with everyday comfort in one of the city’s most desirable neighborhoods. Vaulted ceilings, expansive windows and rich hardwood floors create light-filled interiors that feel open and inviting. The main level flows effortlessly between living, dining and family rooms; spaces designed for connection, entertaining and quiet moments. The kitchen impresses with slab granite counters, floating shelves accented with layered lighting, a built-in pantry and stainless-steel appliances, all wrapped in a cool, moody palette that feels refined yet relaxed. Just off the kitchen, a dining nook opens through sliding doors to an expansive deck framed by lush trees, perfect for morning coffee or evening gatherings. The spacious family room features a statement fireplace, custom built-ins and a private balcony. Upstairs, a light-filled stairway with a skylight and built-in bookshelves leads to a dramatic primary suite with vaulted ceilings, dual sliding barn doors, sleek tile flooring and serene tree views from a private balcony. The spa-inspired ensuite includes vessel sinks, a soaking tub and a tiled walk-in shower. Two additional bedrooms and a stylish hall bath complete the upper level. Downstairs, a versatile flex space is ideal for a gym, studio or home office. Outdoor living continues with an expansive composite deck surrounded by nature and sleek glass railings that modernize every balcony. An oversized two-car garage offers new doors, openers and ample space, even enough for a golf simulator! Added highlights include air conditioning, generator wiring, central vac and a Sonos outdoor sound system. Conveniently located to Hwy 43, with a path to George Rogers Park and moments from downtown Lake Oswego’s shops, restaurants and hot spots, this home embodies life’s best balance; city energy when you want it, a peaceful retreat when you need it!
Download our Mobile app