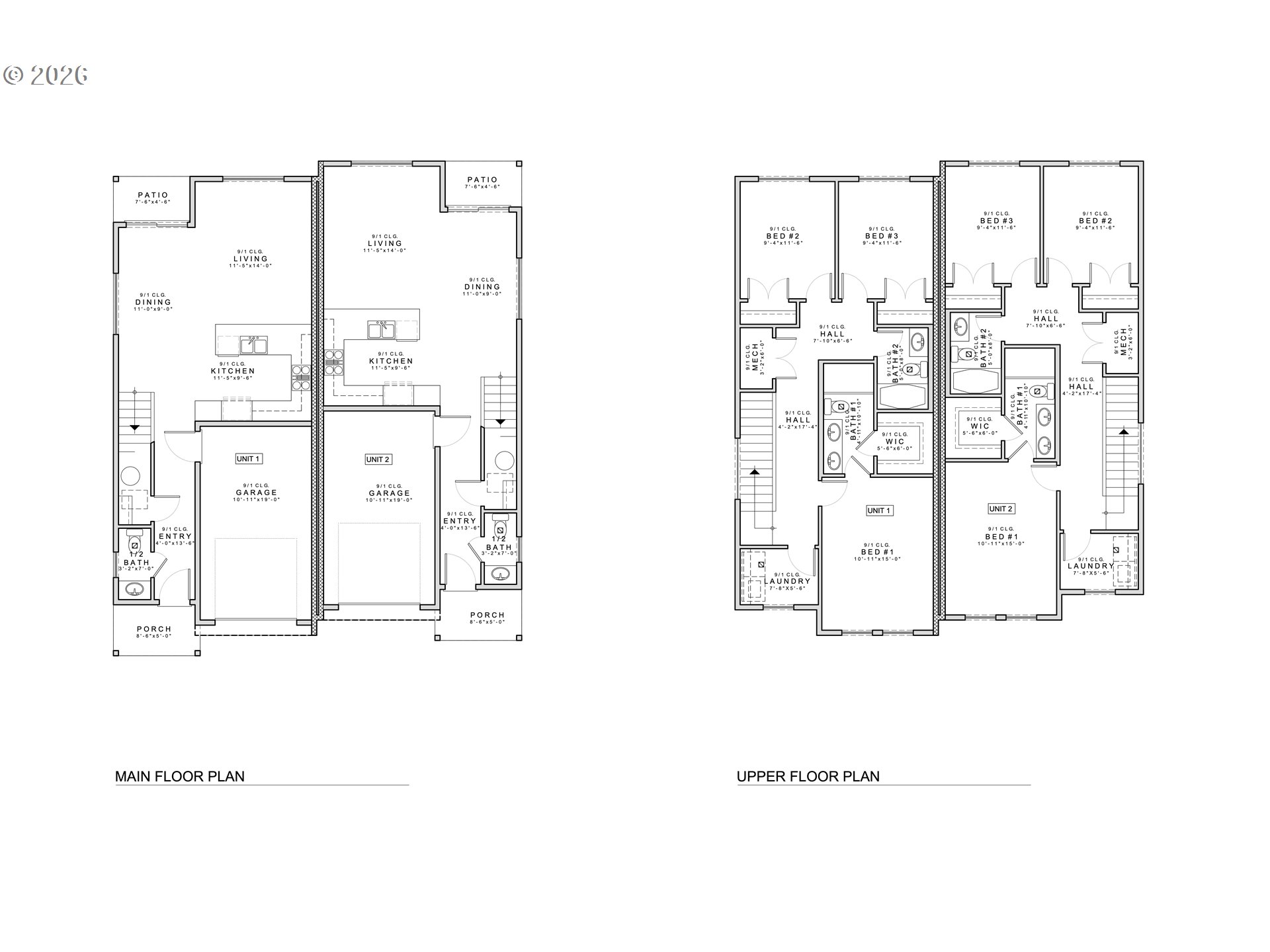
Built by a multi-year Street of Dreams builder and Builder of the Year award winner by the Home Building Association, this offering includes four newly constructed duplexes at Robbins Place, totaling eight residential units across Lots 7 through 10 on approximately 0.88 acres combined. The package delivers twelve bedrooms and eight full plus four half bathrooms, with unit sizes ranging from approximately 1,487 to 1,495 square feet. Each unit features an efficiently designed two-story layout with three bedrooms and two and a half bathrooms, open-concept main level living, a covered front porch, private patio, and fenced yard. One-car attached garages with additional driveway parking enhance tenant appeal and functionality. A half bathroom is located on the main level, while upstairs includes all bedrooms and a full laundry room for added convenience. Constructed with durability and long-term performance in mind, each duplex includes high-efficiency gas forced-air heating, modern insulation standards, and quality finishes throughout. A double-framed common wall with a one-inch air gap and insulation between units enhances separation and privacy. Located in Clackamas County, property taxes may be lower than many areas within Portland city limits. The development offers close proximity to Milwaukie Bay Park and the Willamette River waterfront (~1.5 mi), downtown Milwaukie shops and dining (~1.5 mi), New Seasons Market (~1.6 mi), the Milwaukie/Main Street MAX Station (~1.7 mi), and quick access to SE McLoughlin Blvd, supporting strong rental demand and commuter convenience. With varying exterior styles for architectural diversity and new construction reducing near-term capital expenditure risk, this eight-unit portfolio presents a compelling opportunity for investors seeking stable, low-maintenance multifamily assets in a growing Milwaukie submarket.
Listing Provided Courtesy of Darryl Bodle, Keller Williams Realty Portland Premiere
General Information
173282713
67
DOM
24
0.88 acres
24
11892
2026
R10
Clackamas
New Construction
View Acres 5/10
Alder Creek
Putnam 5/10
MultiFamily
TBD
Listing Provided Courtesy of Darryl Bodle, Keller Williams Realty Portland Premiere
Krishna Realty data last checked: Apr 26, 2026 23:15 | Listing last modified Apr 26, 2026 00:12,
Source:
Download our Mobile app
Residence Information
11892
24
24
Composition
8,
Driveway,Garage
2
2026
No
BoardBattenSiding, CementSiding, LapSiding
CrawlSpace
CrawlSpace
ConcretePerimeter,St
Features and Utilities
None
Gas, Tank
ForcedAir90
PublicSewer
Gas, Tank
Gas
Financial
0
0
None
Cash,Conventional
02-18-2026
No
No
Comparable Information
67
67
Cash,Conventional
$3,799,900
$3,799,900
Apr 26, 2026 00:12
Schools
public Elementary : View Acres
5/10Ratings Middle : Alder Creek N/ARatingspublic High : Putnam
5/10Ratings
Map
Listing courtesy of Keller Williams Realty Portland Premiere.
Built by a multi-year Street of Dreams builder and Builder of the Year award winner by the Home Building Association, this offering includes four newly constructed duplexes at Robbins Place, totaling eight residential units across Lots 7 through 10 on approximately 0.88 acres combined. The package delivers twelve bedrooms and eight full plus four half bathrooms, with unit sizes ranging from approximately 1,487 to 1,495 square feet. Each unit features an efficiently designed two-story layout with three bedrooms and two and a half bathrooms, open-concept main level living, a covered front porch, private patio, and fenced yard. One-car attached garages with additional driveway parking enhance tenant appeal and functionality. A half bathroom is located on the main level, while upstairs includes all bedrooms and a full laundry room for added convenience. Constructed with durability and long-term performance in mind, each duplex includes high-efficiency gas forced-air heating, modern insulation standards, and quality finishes throughout. A double-framed common wall with a one-inch air gap and insulation between units enhances separation and privacy. Located in Clackamas County, property taxes may be lower than many areas within Portland city limits. The development offers close proximity to Milwaukie Bay Park and the Willamette River waterfront (~1.5 mi), downtown Milwaukie shops and dining (~1.5 mi), New Seasons Market (~1.6 mi), the Milwaukie/Main Street MAX Station (~1.7 mi), and quick access to SE McLoughlin Blvd, supporting strong rental demand and commuter convenience. With varying exterior styles for architectural diversity and new construction reducing near-term capital expenditure risk, this eight-unit portfolio presents a compelling opportunity for investors seeking stable, low-maintenance multifamily assets in a growing Milwaukie submarket.