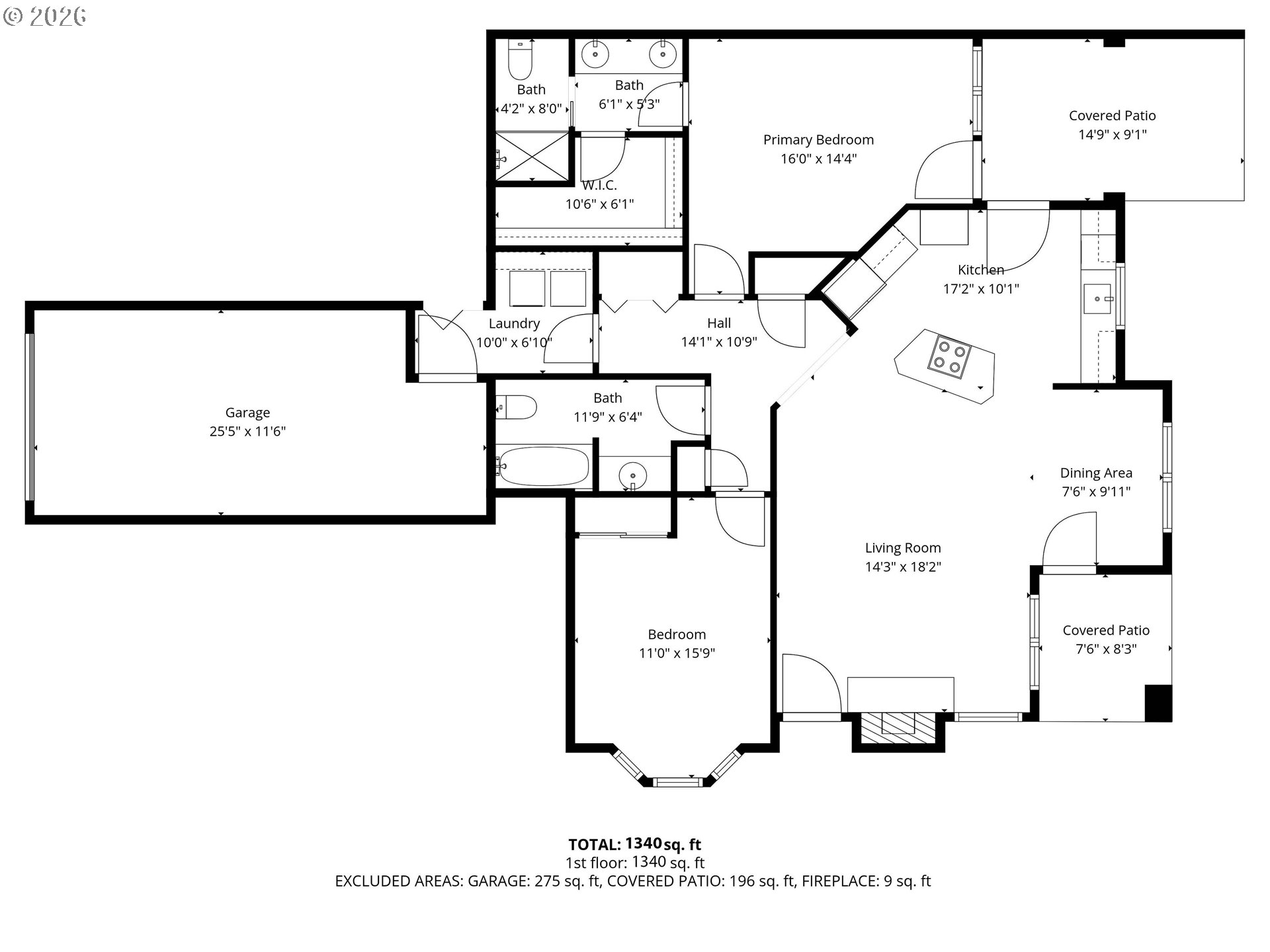
Welcome to this beautifully updated, ground-floor condo in the Madison Heights community. This is a true one-level living with no stairs inside. A cozy move-in-ready home that features expansive windows w/light-filled southern exposure, high ceilings, a gas burning fireplace and two private patios perfect for relaxing & entertaining. Inside, you’ll find updated flooring, new down-draft smooth top range, plus new dishwasher. The kitchen is well-appointed w/ceramic counters, stainless steel appliances, and side patio for grilling. The generously sized primary suite includes a walk-in closet, dual vanities, and access to a covered deck, while the second bedroom offers privacy and beautiful light. A full laundry room and attached garage add convenience. Enjoy impeccably maintained grounds with walking trails & mature trees. There is room to container garden & plenty of birdsong. There is also easy access to shops and nearby Willamete Drive. With a strong HOA that includes water and sewer, this home is ideal for those seeking low-maintenance comfort, accessibility, and a prime location.
Listing Provided Courtesy of Chris Speth, Like Kind Realty
General Information
292777538
Condominium
15
DOM
2
2
1290
2002
Clackamas
05006258
Willamette 5/10
Athey Creek
West Linn 9/10
Residential
Condominium
CONDOMINIUM SUBDIVISION MADISON HEIGHTS CONDOMINIUM 3749 STAGE 2
Listing Provided Courtesy of Chris Speth, Like Kind Realty
Krishna Realty data last checked: Apr 23, 2026 10:43 | Listing last modified Apr 16, 2026 21:49,
Source:
Welcome to this beautifully updated, ground-floor condo in the Madison Heights community. This is a true one-level living with no stairs inside. A cozy move-in-ready home that features expansive windows w/light-filled southern exposure, high ceilings, a gas burning fireplace and two private patios perfect for relaxing & entertaining. Inside, you’ll find updated flooring, new down-draft smooth top range, plus new dishwasher. The kitchen is well-appointed w/ceramic counters, stainless steel appliances, and side patio for grilling. The generously sized primary suite includes a walk-in closet, dual vanities, and access to a covered deck, while the second bedroom offers privacy and beautiful light. A full laundry room and attached garage add convenience. Enjoy impeccably maintained grounds with walking trails & mature trees. There is room to container garden & plenty of birdsong. There is also easy access to shops and nearby Willamete Drive. With a strong HOA that includes water and sewer, this home is ideal for those seeking low-maintenance comfort, accessibility, and a prime location.