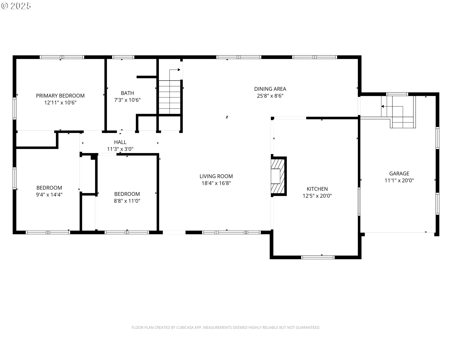
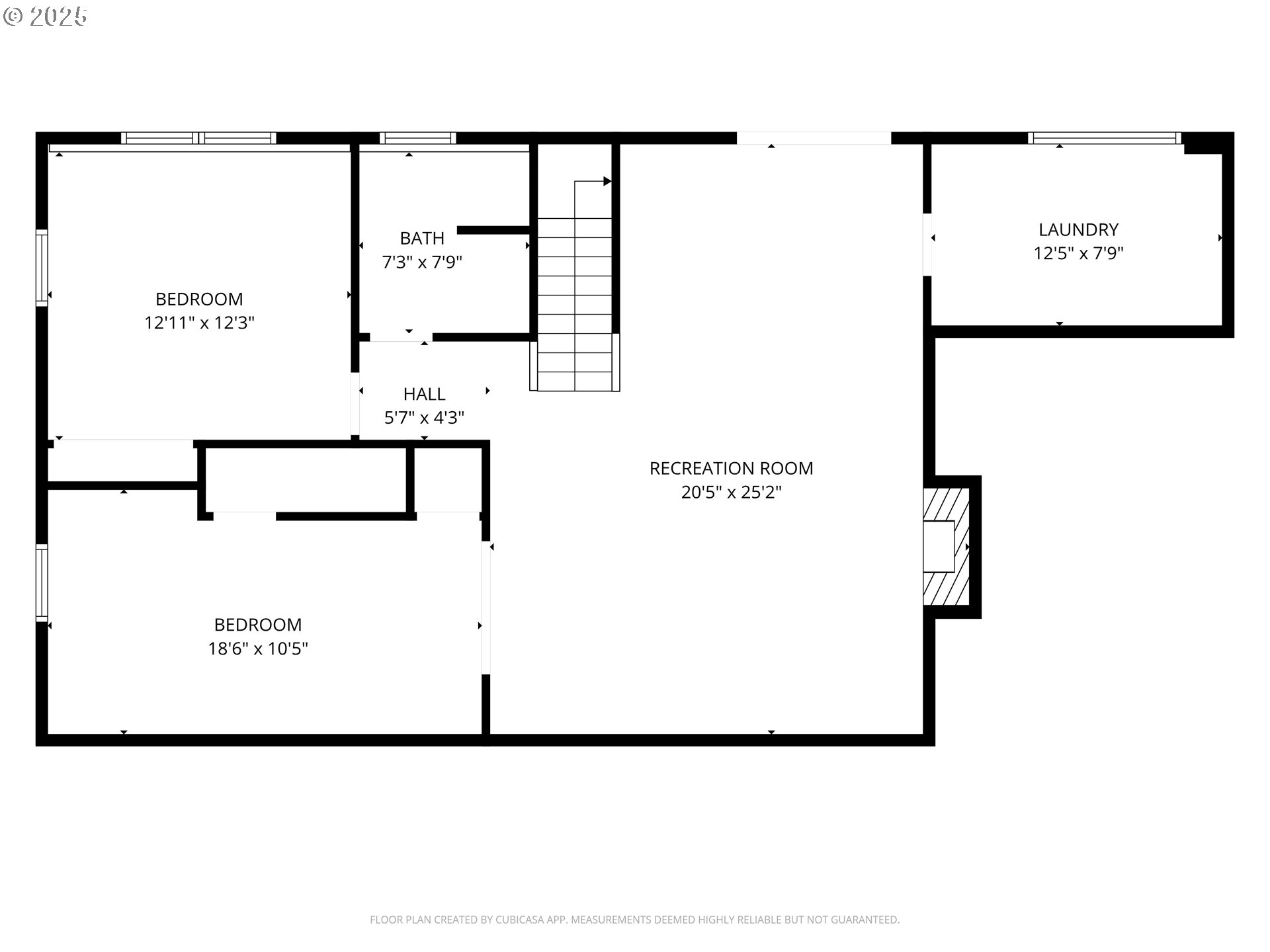
Back on the market and priced to sell after a break for the holiday season! Comfort, convenience, and room to grow - welcome home. Tucked into a quiet corner lot beside a cul-de-sac, this remodeled daylight ranch offers the ideal blend of updates, spacious living, and an unbeatable location. With 2,494 sq ft, 4 bedrooms, 2 bathrooms, and multiple living areas, it’s designed for everyday comfort and easy entertaining.From the curb, the home makes a strong first impression. The larger lot provides a sense of space and privacy rarely found, with fewer nearby homes and minimal through-traffic for a peaceful, tucked-away feel— yet close to everything.Inside, the main floor features a smart, functional layout. The remodeled kitchen showcases modern finishes, a dual oven with gas cooktop, and flows seamlessly into a bright living room. The daylight basement adds versatility with a cozy family room, bonus space, and a separate bedroom—ideal for guests, extended stays, or a home office—with a full bath nearby.Major system updates offer peace of mind: roof and gutters replaced three years ago, AC just one year old, and upgraded Milgard double-pane windows throughout for energy efficiency and year-round comfort.The location truly stands out-close to Costco, Trader Joe’s, New Seasons, Clackamas Town Center, parks, schools, medical facilities, and a neighborhood path leading to a community garden. Easy access to main roads makes commuting and weekend trips a breeze.Thoughtfully updated and move-in ready, this home offers space to relax, gather, and grow in a prime location. Come see it in person-it may be exactly what you’ve been waiting for.
Listing Provided Courtesy of Matt Lagasse, The Broker Network, LLC
General Information
693670322
SingleFamilyResidence
127
DOM
4
6534 SqFt
2
2494
1962
Clackamas
00094123
Lewelling 2/10
Rowe 3/10
Milwaukie 7/10
Residential
SingleFamilyResidence
889 PARK VISTA LT 001 BLK 02
Listing Provided Courtesy of Matt Lagasse, The Broker Network, LLC
Krishna Realty data last checked: Mar 17, 2026 00:03 | Listing last modified Mar 06, 2026 12:01,
Source:
Back on the market and priced to sell after a break for the holiday season! Comfort, convenience, and room to grow - welcome home. Tucked into a quiet corner lot beside a cul-de-sac, this remodeled daylight ranch offers the ideal blend of updates, spacious living, and an unbeatable location. With 2,494 sq ft, 4 bedrooms, 2 bathrooms, and multiple living areas, it’s designed for everyday comfort and easy entertaining.From the curb, the home makes a strong first impression. The larger lot provides a sense of space and privacy rarely found, with fewer nearby homes and minimal through-traffic for a peaceful, tucked-away feel— yet close to everything.Inside, the main floor features a smart, functional layout. The remodeled kitchen showcases modern finishes, a dual oven with gas cooktop, and flows seamlessly into a bright living room. The daylight basement adds versatility with a cozy family room, bonus space, and a separate bedroom—ideal for guests, extended stays, or a home office—with a full bath nearby.Major system updates offer peace of mind: roof and gutters replaced three years ago, AC just one year old, and upgraded Milgard double-pane windows throughout for energy efficiency and year-round comfort.The location truly stands out-close to Costco, Trader Joe’s, New Seasons, Clackamas Town Center, parks, schools, medical facilities, and a neighborhood path leading to a community garden. Easy access to main roads makes commuting and weekend trips a breeze.Thoughtfully updated and move-in ready, this home offers space to relax, gather, and grow in a prime location. Come see it in person-it may be exactly what you’ve been waiting for.