West Linn, 97068
3 Bed
2.5 Bath
2800 SqFt
20 DOM
Built: 1968
$1,030,000
$1030000
3 Bed
2.5 Bath
2800 SqFt
20 DOM
Built: 1968
Principal Broker
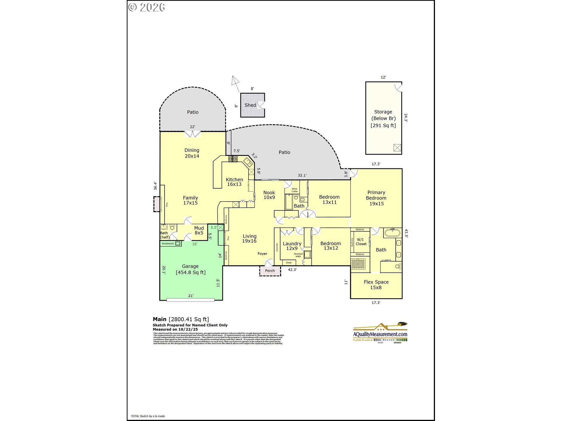
(503) 893-8874This single-level ranch home in the desirable Robinwood neighborhood is a rare find. Set on a private one-acre lot surrounded by protected forested wetlands, it has a functional, cozy and inviting layout with 3 bedrooms, 2.5 baths, and a laundry with built in cabinets and a desk which can be used as an office. A chef’s kitchen features high-end stainless steel appliances, including three ovens! It opens to a spacious family room and dining area with vaulted ceilings and exposed beams, creating the perfect setting for everyday living, small gatherings or large parties. The generous primary suite is a true retreat, complete with an updated, spa-like bath and an additional flex space ideal for a nursery, art studio, or yoga space. Tons of storage below too! The backyard patio is perfect for a quiet afternoon of reading or bird and deer watching. The English garden in the front yard welcomes the friendly neighbors. Sweet, cozy, and full of charm, this home offers peaceful privacy while remaining part of a friendly, walkable neighborhood close to shopping, restaurants, trails, boat dock and parks. Short walk to Cedaroak Park Primary. This home is also in the Rosemont Ridge Middle and West Linn High School boundry.
Listing Provided Courtesy of Kerry Tinsley, Cascade Hasson Sotheby's International Realty
671348416
SingleFamilyResidence
20 DOM
3
1.11 acres
2.5
2800
1968
R-10
Clackamas
00297654
Cedaroak Park 9/10
Rosemont Ridge 8/10
West Linn 9/10
Residential
SingleFamilyResidence
468 CEDAROAK PK PT LT 114 PT OF SEC
Listing Provided Courtesy of Kerry Tinsley, Cascade Hasson Sotheby's International Realty
Krishna Realty data last checked: Feb 21, 2026 20:21 | Listing last modified Feb 11, 2026 13:20,
Source:
Download our Mobile app
0
2800
0
2800
A Quality
2800
2/Gas
3
2
1
2.5
Composition
2, Attached
Ranch
Driveway,RVAccessPar
1
1968
No
Brick, CementSiding
CrawlSpace,PartialBasement,StorageSpace
RVParking,RVBoatStorage
CrawlSpace,PartialBa
DoublePaneWindows,Wo
Bookcases, BuiltinFeatures, Fireplace, Formal, HardwoodFloors
BuiltinOven, BuiltinRange, BuiltinRefrigerator, Dishwasher, Disposal, DoubleOven, GasAppliances, StainlessS
CentralVacuum, CorkFloor, GarageDoorOpener, HardwoodFloors, HighCeilings, Laundry, SoakingTub, WalltoWallCa
BuiltinBarbecue, RaisedBeds, RVParking, RVBoatStorage, ToolShed, Yard
CentralAir
Gas, Tankless
ForcedAir
PublicSewer
Gas, Tankless
Gas
9482.4
0
Cash,Conventional,VALoan
01-22-2026
No
No
20
30
Cash,Conventional,VALoan
$1,030,000
$1,030,000
Feb 11, 2026 13:20
Listing courtesy of Cascade Hasson Sotheby's International Realty.
The content relating to real estate for sale on this site comes in part from the IDX program of the RMLS of Portland, Oregon.
Real Estate listings held by brokerage firms other than this firm are marked with the RMLS logo, and
detailed information about these properties include the name of the listing's broker.
Listing content is copyright © 2019 RMLS of Portland, Oregon.
All information provided is deemed reliable but is not guaranteed and should be independently verified.
Krishna Realty data last checked: Feb 21, 2026 20:21 | Listing last modified Feb 11, 2026 13:20.
Some properties which appear for sale on this web site may subsequently have sold or may no longer be available.
Principal Broker
(503) 893-8874This single-level ranch home in the desirable Robinwood neighborhood is a rare find. Set on a private one-acre lot surrounded by protected forested wetlands, it has a functional, cozy and inviting layout with 3 bedrooms, 2.5 baths, and a laundry with built in cabinets and a desk which can be used as an office. A chef’s kitchen features high-end stainless steel appliances, including three ovens! It opens to a spacious family room and dining area with vaulted ceilings and exposed beams, creating the perfect setting for everyday living, small gatherings or large parties. The generous primary suite is a true retreat, complete with an updated, spa-like bath and an additional flex space ideal for a nursery, art studio, or yoga space. Tons of storage below too! The backyard patio is perfect for a quiet afternoon of reading or bird and deer watching. The English garden in the front yard welcomes the friendly neighbors. Sweet, cozy, and full of charm, this home offers peaceful privacy while remaining part of a friendly, walkable neighborhood close to shopping, restaurants, trails, boat dock and parks. Short walk to Cedaroak Park Primary. This home is also in the Rosemont Ridge Middle and West Linn High School boundry.
Download our Mobile app