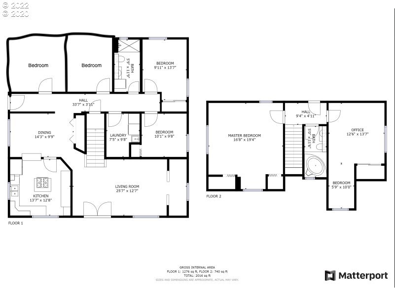
Seller to pay 10,000 of purchaser's costs with a full price offer. Hard to find a home with livability and so many possibilities for income producing. Old home was replaced in 2005 builder did not have the year changed on the tax records. Four bedrooms on the main level with an ADA bathroom, laundry room, this level was once used as an adult care home. The upstairs is a private 2 bedroom, siting area bath and laundry. Check with the city to see if you can run your business. It is a great home for a large family. Guest home could be an ADU. The backyard is private with a chicken coop, fruit trees, outbuildings. Seller motivated submit offers.
Listing Provided Courtesy of Ella Clark, Mal & Seitz
General Information
22274532
SingleFamilyResidence
1177
DOM
5
8712 SqFt
2
2310
1930
Clackamas
00657471
Sandy 6/10
Cedar Ridge 7/10
Sandy 6/10
Residential
SingleFamilyResidence
SECTION 13 TOWNSHIP 2S RANGE 4E QUARTER BC TAX LOT 02500
Listing Provided Courtesy of Ella Clark, Mal & Seitz
Krishna Realty data last checked: Dec 12, 2025 02:56 | Listing last modified Dec 03, 2025 13:36,
Source:
Seller to pay 10,000 of purchaser's costs with a full price offer. Hard to find a home with livability and so many possibilities for income producing. Old home was replaced in 2005 builder did not have the year changed on the tax records. Four bedrooms on the main level with an ADA bathroom, laundry room, this level was once used as an adult care home. The upstairs is a private 2 bedroom, siting area bath and laundry. Check with the city to see if you can run your business. It is a great home for a large family. Guest home could be an ADU. The backyard is private with a chicken coop, fruit trees, outbuildings. Seller motivated submit offers.