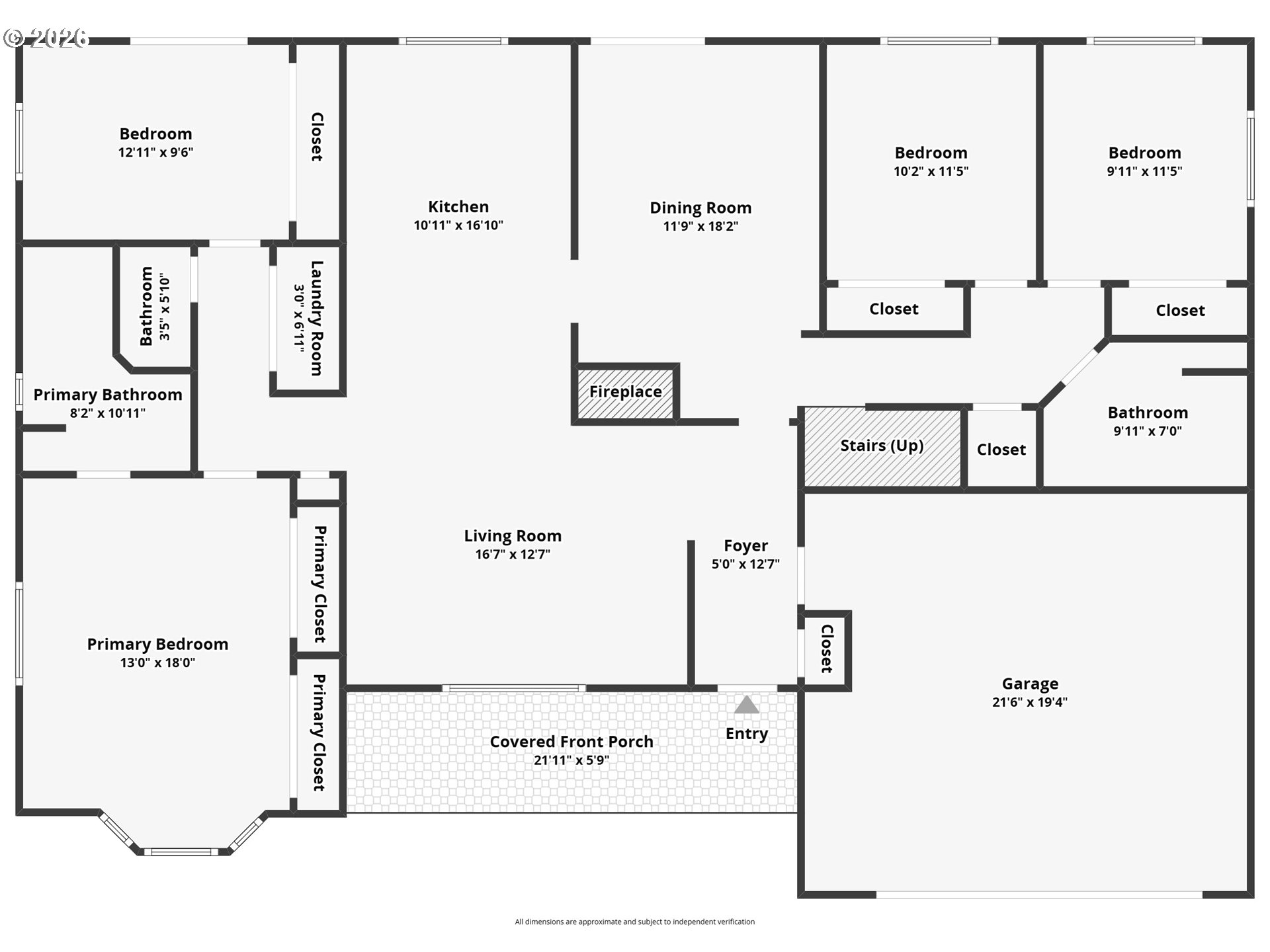
Mostly one level living in beautiful Charbonneau. This thoughtful floor plan provides separation and flexibility. On one side of the main level is the primary bedroom with ensuite along with an additional half bath and bedroom that opens to the backyard. On the opposite side of the home are two additional bedrooms and a full bathroom. A bonus loft area upstairs can serve as a 5th bedroom, guest room or great work from home/hobby area with a full bath. The heart of the home features vaulted ceilings and skylights to bring in lots of natural light. A welcoming entry opens to a large living and dining area with an open kitchen. Just off this space is a second, more intimate living room with a new gas fireplace insert and direct access to the back deck, creating a cozy space for relaxing or gathering with friends and family. Recently updated with new vinyl windows throughout, new gas range and microwave, and a new water heater along with other improvements. Outdoor spaces are designed for easy living with a covered front porch, landscaped with low maintenance perennials, native plants and a large Trex deck overlooking the private backyard. Access to four pools, a dog park, bocce ball courts, basketball courts, and scenic walking paths with optional use of community gym facility and golf membership. Must see in person to fully appreciate all this home has to offer.
Listing Provided Courtesy of Nick Shivers, eXp Realty, LLC
General Information
280779351
SingleFamilyResidence
0
DOM
5
7405.2 SqFt
3.5
2206
1987
Clackamas
00825398
Eccles
Baker Prairie
Canby
Residential
SingleFamilyResidence
2443 CHARBONNEAU SINGLE FAMILY EAST THIRD ADD LT 135
Listing Provided Courtesy of Nick Shivers, eXp Realty, LLC
Krishna Realty data last checked: Mar 19, 2026 14:56 | Listing last modified Mar 19, 2026 10:29,
Source:
Mostly one level living in beautiful Charbonneau. This thoughtful floor plan provides separation and flexibility. On one side of the main level is the primary bedroom with ensuite along with an additional half bath and bedroom that opens to the backyard. On the opposite side of the home are two additional bedrooms and a full bathroom. A bonus loft area upstairs can serve as a 5th bedroom, guest room or great work from home/hobby area with a full bath. The heart of the home features vaulted ceilings and skylights to bring in lots of natural light. A welcoming entry opens to a large living and dining area with an open kitchen. Just off this space is a second, more intimate living room with a new gas fireplace insert and direct access to the back deck, creating a cozy space for relaxing or gathering with friends and family. Recently updated with new vinyl windows throughout, new gas range and microwave, and a new water heater along with other improvements. Outdoor spaces are designed for easy living with a covered front porch, landscaped with low maintenance perennials, native plants and a large Trex deck overlooking the private backyard. Access to four pools, a dog park, bocce ball courts, basketball courts, and scenic walking paths with optional use of community gym facility and golf membership. Must see in person to fully appreciate all this home has to offer.