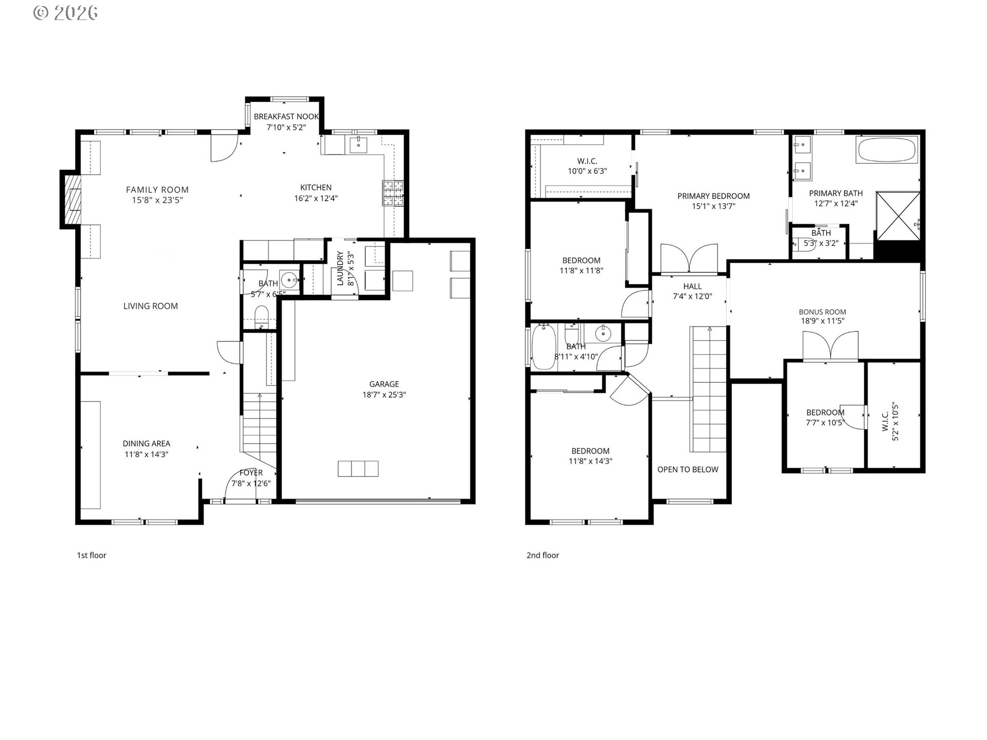
OPEN SUNDAY 3/8 1-3!!!! Stunning Remodel! The heart of this home is an incredible 2025 kitchen remodel designed to impress - white cabinetry extends to the ceiling, complemented by quartz countertops, an island, pantry, farmhouse sink, built-in oven, & a professional-grade 6 burner gas range. A built-in bench creates a perfect breakfast nook. The main level open living area features built-ins, a gas fireplace, & laminate flooring replaced in 2025. The primary suite feels like a private retreat. A walk-in closet with built-ins. A 2020 remodeled spa-inspired bathroom with double sinks, a soaking tub, beautifully tiled shower, heated floors, and a heated towel rack. No detail has been overlooked. Remodeled hall bath and powder room. Corner lot with a patio, gazebo and large fenced yard. Roof replaced in 2021. Too many details and upgrades to list them all. A must see!
Listing Provided Courtesy of Alicia Dart, Soldera Properties, Inc
General Information
448472918
SingleFamilyResidence
1
DOM
4
6534 SqFt
2.5
2416
1999
Clackamas
Not Found
Boones Ferry 5/10
Wood 5/10
Wilsonville 7/10
Residential
SingleFamilyResidence
3349 MOREYS LNDG #2 LT 90
Listing Provided Courtesy of Alicia Dart, Soldera Properties, Inc
Krishna Realty data last checked: Mar 06, 2026 18:57 | Listing last modified Mar 06, 2026 08:29,
Source:
Open House
Sun, Mar 8th, 1PM to 3PM
Download our Mobile app
Residence Information
1160
1256
0
2416
prev list
2416
1/Gas
4
2
1
2.5
Composition
3, Tandem
Stories2
Driveway,OnStreet
2
1999
No
CementSiding
CrawlSpace
CrawlSpace
StemWall
VinylFrames
Features and Utilities
ApplianceGarage, BuiltinOven, Dishwasher, Disposal, GasAppliances, Island, Microwave, Quartz, StainlessSteel
OPEN SUNDAY 3/8 1-3!!!! Stunning Remodel! The heart of this home is an incredible 2025 kitchen remodel designed to impress - white cabinetry extends to the ceiling, complemented by quartz countertops, an island, pantry, farmhouse sink, built-in oven, & a professional-grade 6 burner gas range. A built-in bench creates a perfect breakfast nook. The main level open living area features built-ins, a gas fireplace, & laminate flooring replaced in 2025. The primary suite feels like a private retreat. A walk-in closet with built-ins. A 2020 remodeled spa-inspired bathroom with double sinks, a soaking tub, beautifully tiled shower, heated floors, and a heated towel rack. No detail has been overlooked. Remodeled hall bath and powder room. Corner lot with a patio, gazebo and large fenced yard. Roof replaced in 2021. Too many details and upgrades to list them all. A must see!