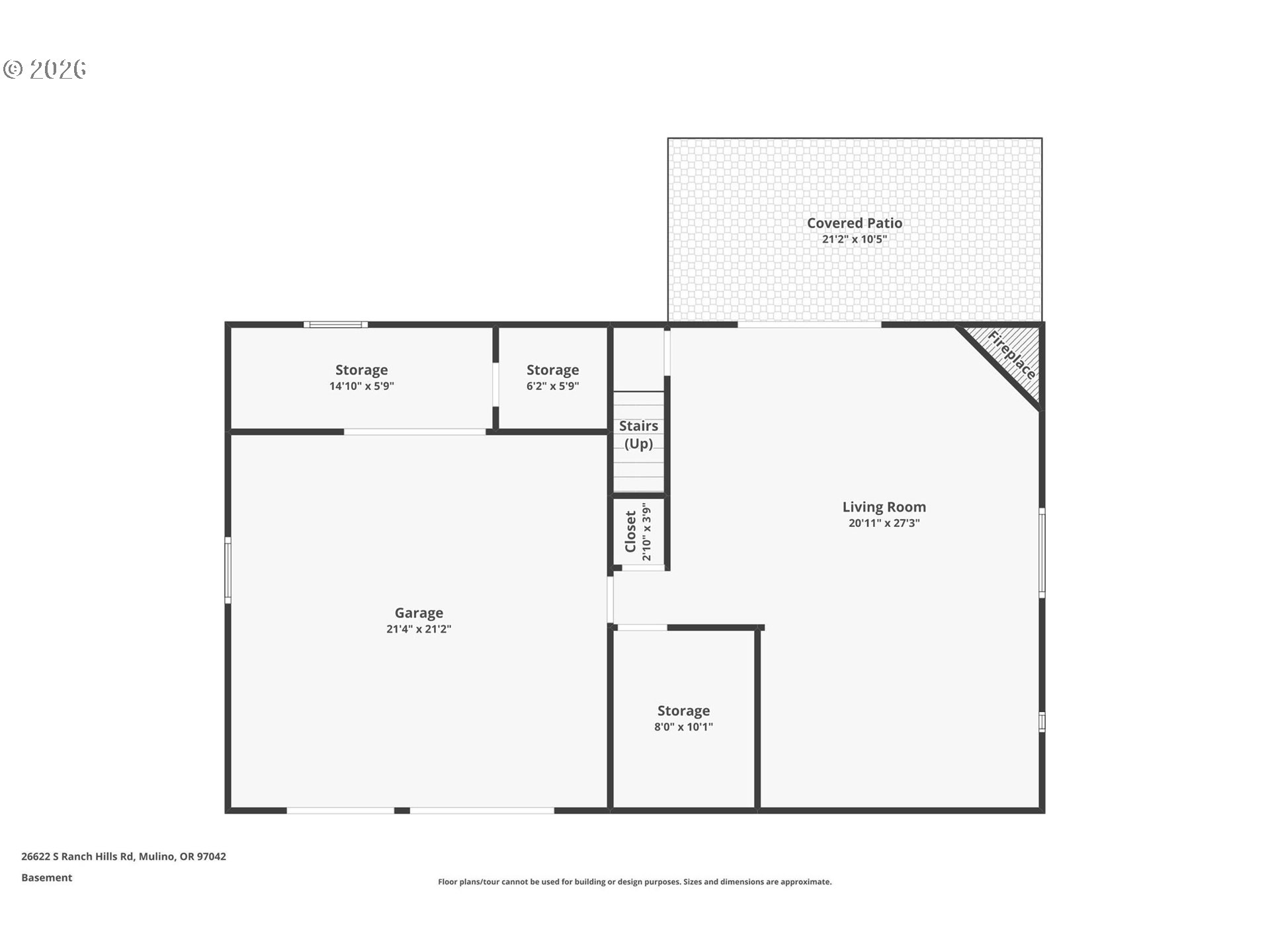
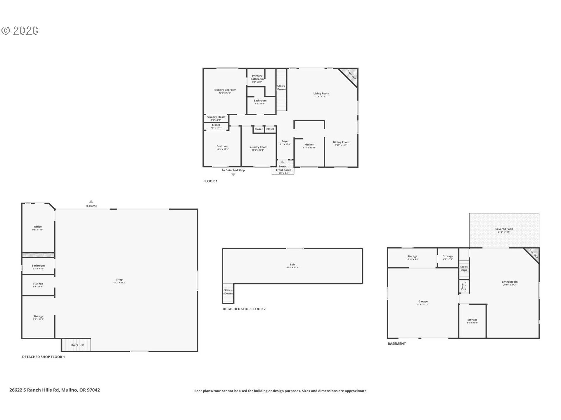
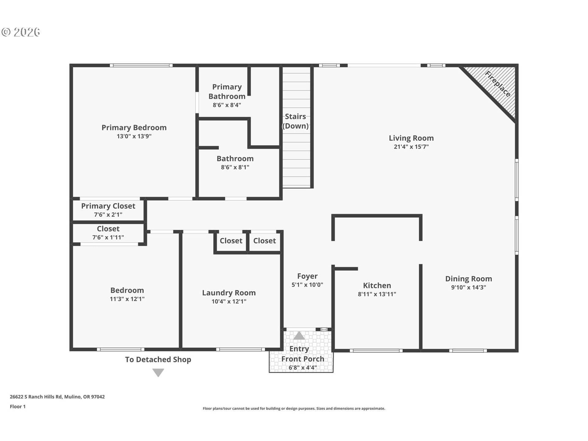
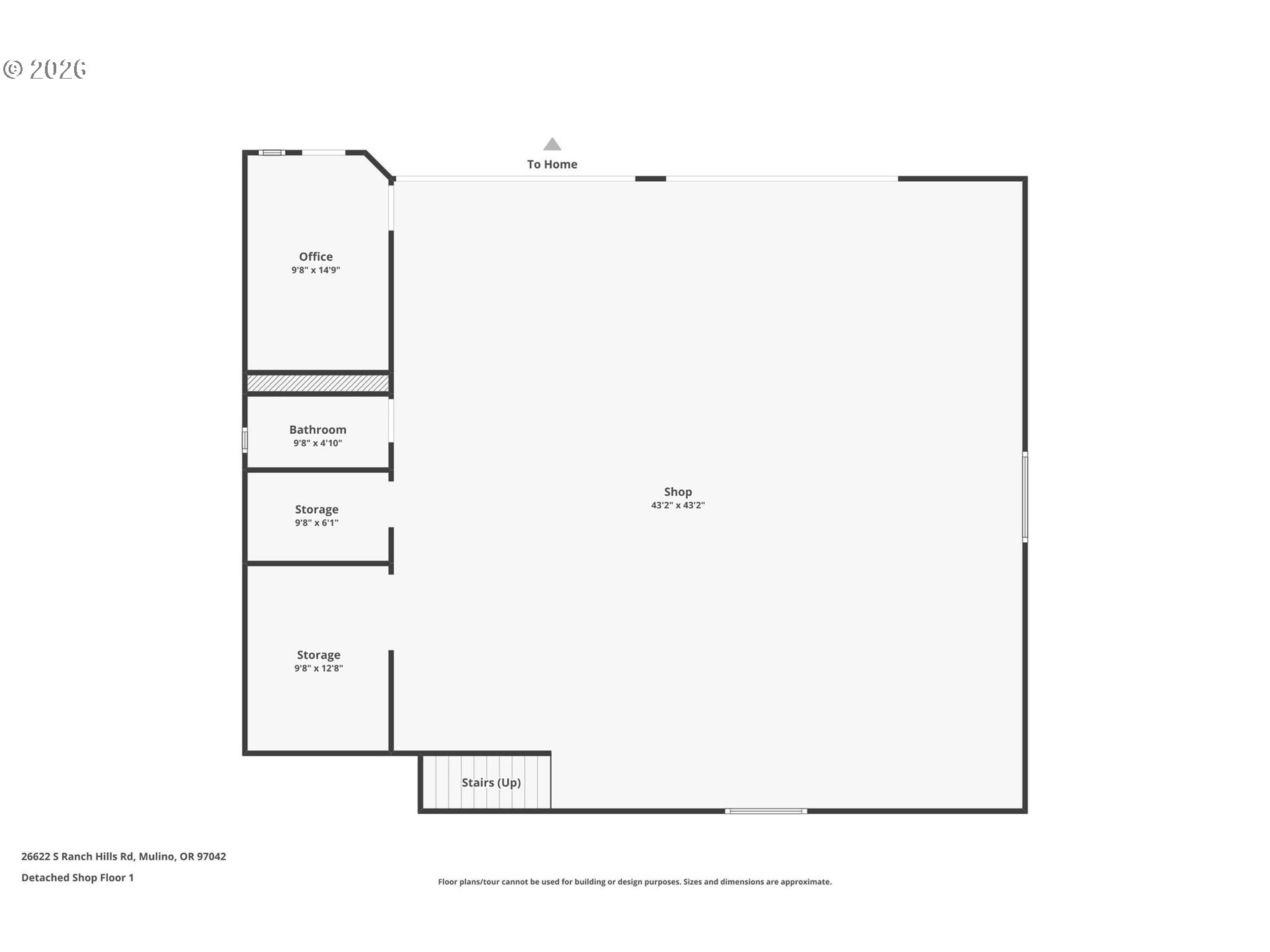
No Sign on Property! Tucked away on 0.8 acres overlooking the former Ranch Hills Golf Course, this 2,174 square foot two-story home offers a rare combination of privacy, usable land, and exceptional shop space just minutes from town.The setting is the star. Enjoy peaceful territorial views of rolling greens and surrounding hillsides, with room to breathe and space to create the lifestyle you’ve been wanting.The property features a fully equipped 40x50 oversized shop with 220 power, concrete floors, heat, a bathroom, dedicated office space, and 16-foot doors. Ideal for contractors, hobbyists, car enthusiasts, small business owners, RV storage, or anyone needing serious workspace. Opportunities like this are hard to find.Inside, the 3-bedroom, 2-bath home offers generous square footage and a functional two-story layout with multiple living spaces and excellent natural light. The home provides a comfortable, well-maintained foundation with room to make it your own over time. The recently updated shower and bathroom flooring add a fresh touch, while the overall layout offers flexibility for everyday living, entertaining, or working from home.The spacious lot allows for gardening, chickens, storage, and outdoor enjoyment, with plenty of room for toys, trailers, equipment, or future plans.If you’ve been searching for usable acreage, a true shop setup, and peaceful rural surroundings with views, this Mulino property delivers.
Listing Provided Courtesy of Nik Kulikov, Cascade Hasson Sotheby's International Realty
General Information
288613444
SingleFamilyResidence
63
DOM
2
0.84 acres
2
2174
1975
RS
Clackamas
01030413
Mulino 3/10
Molalla River
Molalla
Residential
SingleFamilyResidence
1120 RANCH GOLF COURSE EST LT 7
Listing Provided Courtesy of Nik Kulikov, Cascade Hasson Sotheby's International Realty
Krishna Realty data last checked: Apr 28, 2026 08:46 | Listing last modified Apr 27, 2026 09:08,
Source:
Download our Mobile app
Residence Information
0
1380
794
2174
Measure
1380
2/Gas
2
2
0
2
Composition
2, Attached
Stories2,Ranch
Driveway,RVAccessPar
2
1975
No
WoodSiding
ExteriorEntry,Finished,FullBasement
RVParking,RVBoatStorage
ExteriorEntry,Finish
ConcretePerimeter
AluminumFrames
Features and Utilities
Dishwasher
Laundry
Deck, RVBoatStorage, Yard
CentralAir
Gas
ForcedAir
SepticTank
Gas
Electricity, Gas
Financial
5397.65
0
Cash,Conventional,FHA,USDALoan,VALoan
02-24-2026
No
No
Comparable Information
63
63
Cash,Conventional,FHA,USDALoan,VALoan
$650,000
$650,000
Apr 27, 2026 09:08
Schools
public Elementary : Mulino
3/10Ratings Middle : Molalla River N/ARatings High : MolallaN/ARatings
Map
Listing courtesy of Cascade Hasson Sotheby's International Realty.
No Sign on Property! Tucked away on 0.8 acres overlooking the former Ranch Hills Golf Course, this 2,174 square foot two-story home offers a rare combination of privacy, usable land, and exceptional shop space just minutes from town.The setting is the star. Enjoy peaceful territorial views of rolling greens and surrounding hillsides, with room to breathe and space to create the lifestyle you’ve been wanting.The property features a fully equipped 40x50 oversized shop with 220 power, concrete floors, heat, a bathroom, dedicated office space, and 16-foot doors. Ideal for contractors, hobbyists, car enthusiasts, small business owners, RV storage, or anyone needing serious workspace. Opportunities like this are hard to find.Inside, the 3-bedroom, 2-bath home offers generous square footage and a functional two-story layout with multiple living spaces and excellent natural light. The home provides a comfortable, well-maintained foundation with room to make it your own over time. The recently updated shower and bathroom flooring add a fresh touch, while the overall layout offers flexibility for everyday living, entertaining, or working from home.The spacious lot allows for gardening, chickens, storage, and outdoor enjoyment, with plenty of room for toys, trailers, equipment, or future plans.If you’ve been searching for usable acreage, a true shop setup, and peaceful rural surroundings with views, this Mulino property delivers.