Estacada, 97023
4 Bed
4 Bath
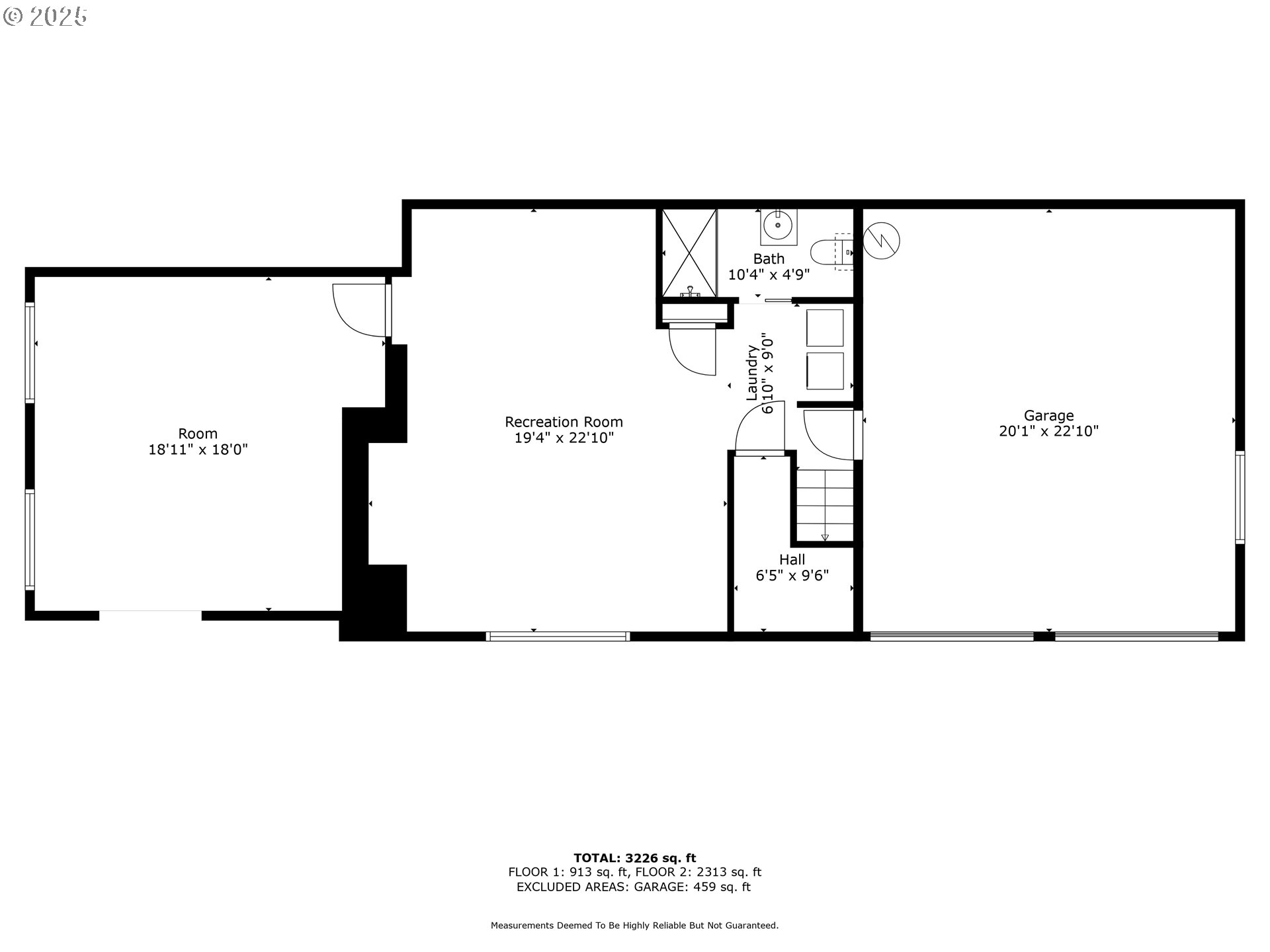
3394 SqFt
55 DOM
Built: 1979
$810,000
Price cut: $15K (10-21-2025)
$810000
Price cut: $15K (10-21-2025)
4 Bed
4 Bath
3394 SqFt
55 DOM
Built: 1979
                                                        Principal Broker
(503) 893-8874Rare opportunity with assumable loan at just 1.75%! This spacious and inviting 4-bedroom home also includes a bonus room that can serve as a 5th bedroom, home office, or media space. Perched on over 5 private acres, the property offers beautiful views and the perfect blend of comfort, function, and tranquility.The expansive primary suite is a true retreat, featuring its own sun room/den/sitting room, a generous walk-in closet, and a spa-like bathroom complete with two vanities, soaking tub, and shower. The heart of the home is the open kitchen and living area, designed for gathering and entertaining, complete with a cozy wood-burning fireplace to warm up those cool evenings.Thoughtfully updated, this home boasts fresh interior and paint, brand-new carpet, durable flooring, and modern appliances—providing a move-in ready experience. Outdoors, enjoy established fruit trees, create your dream garden, or simply soak in the total privacy and wide-open space.
Listing Provided Courtesy of Anna Zimmer, Equity Oregon Real Estate
402070758
SingleFamilyResidence
55 DOM
4
5.06 acres
4
3394
1979
FF10
Clackamas
00920052
Clackamas River 3/10
Estacada 5/10
Estacada 5/10
Residential
SingleFamilyResidence
SECTION 23 TOWNSHIP 3S RANGE 3E QUARTER B TAX LOT 01800
Listing Provided Courtesy of Anna Zimmer, Equity Oregon Real Estate
 Krishna Realty data last checked: Nov 03, 2025 15:40 | Listing last modified Oct 21, 2025 08:39,
                Source:
                                    
                            
Download our Mobile app
0
2198
1196
3394
Tax
2198
1/Gas
4
4
0
4
Composition
2, Attached
Stories2,Split
Driveway
2
1979
No
Cedar
Daylight
Daylight
ConcretePerimeter
DoublePaneWindows,Vi
Fireplace
BuiltinRange, ConvectionOven, Dishwasher, Disposal, ENERGYSTARQualifiedAppliances, FreeStandingRefrigerat
CeilingFan, Granite, HighCeilings, JettedTub, Laundry, Quartz, SoakingTub, VaultedCeiling, WalltoWallCarpet,
Deck, FirePit, Porch, ToolShed, Yard
HeatPump
Electricity
ForcedAir
SepticTank
Electricity
Electricity
6294.55
0
Assumable,Cash,Conventional,FHA,USDALoan,VALoan
08-27-2025
No
No
55
68
Assumable,Cash,Conventional,FHA,USDALoan,VALoan
$825,000
$810,000
Oct 21, 2025 08:39
Listing courtesy of Equity Oregon Real Estate.
                    
            The content relating to real estate for sale on this site comes in part from the IDX program of the RMLS of Portland, Oregon.
            Real Estate listings held by brokerage firms other than this firm are marked with the RMLS logo, and
            detailed information about these properties include the name of the listing's broker.
            Listing content is copyright © 2019 RMLS of Portland, Oregon.
            All information provided is deemed reliable but is not guaranteed and should be independently verified.
            Krishna Realty data last checked: Nov 03, 2025 15:40 | Listing last modified Oct 21, 2025 08:39.
            Some properties which appear for sale on this web site may subsequently have sold or may no longer be available.
        
    
                                                        Principal Broker
(503) 893-8874Rare opportunity with assumable loan at just 1.75%! This spacious and inviting 4-bedroom home also includes a bonus room that can serve as a 5th bedroom, home office, or media space. Perched on over 5 private acres, the property offers beautiful views and the perfect blend of comfort, function, and tranquility.The expansive primary suite is a true retreat, featuring its own sun room/den/sitting room, a generous walk-in closet, and a spa-like bathroom complete with two vanities, soaking tub, and shower. The heart of the home is the open kitchen and living area, designed for gathering and entertaining, complete with a cozy wood-burning fireplace to warm up those cool evenings.Thoughtfully updated, this home boasts fresh interior and paint, brand-new carpet, durable flooring, and modern appliances—providing a move-in ready experience. Outdoors, enjoy established fruit trees, create your dream garden, or simply soak in the total privacy and wide-open space.
Download our Mobile app