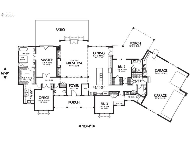
Proposed build to suit custom home. Step into a home designed around the way you live. This single-story residence offers the perfect balance of space, comfort, and thoughtful design. Featuring 3 generously sized bedrooms with ensuites, plus a dedicated office, this home is ideal for both everyday living and working from home. The open-concept layout seamlessly connects the kitchen, great room, and dining area—creating a bright, inviting space perfect for entertaining or relaxing with family. The kitchen is the heart of the home, designed with both functionality and style in mind, flowing effortlessly into the expansive, vaulted great room. Large windows invite natural light throughout, enhancing the home’s airy feel. Enjoy outdoor living from not just one, but three patios/porches—perfect for morning coffee, evening gatherings, or simply unwinding in your own private retreat. An oversized garage provides ample space for vehicles, storage, hobbies, or a workshop setup. This is more than a home—it’s an opportunity to tailor every detail to your lifestyle in a beautifully designed, spacious single-story layout. Proposed elevation and floorplan by Mascord Design Associates. Modifications and other plans are available to meet buyer's specifications. Adjacent 3 acre lot available as a build to suit also if a multigenerational site is of interest.
Listing Provided Courtesy of Jeff Edmondson, 24/7 Properties
General Information
321096781
SingleFamilyResidence
1
DOM
3
4 acres
5
3064
2026
RRFF5
Clackamas
00392168
Stafford 10/10
Athey Creek
West Linn 9/10
Residential
SingleFamilyResidence
568 ROSEMONT AC PT LTS 19&20
Listing Provided Courtesy of Jeff Edmondson, 24/7 Properties
Krishna Realty data last checked: Apr 29, 2026 03:51 | Listing last modified Apr 28, 2026 21:34,
Source:
Download our Mobile app
Residence Information
0
3064
0
3064
Floor Plan
3064
3
3
2
5
Composition
3, Attached, Oversized
Stories1,Ranch
Covered,Driveway
1
2026
No
BoardBattenSiding, CementSiding
CrawlSpace
CrawlSpace
ConcretePerimeter
VinylFrames
Features and Utilities
Dishwasher, FreeStandingRange, Island, Quartz, StainlessSteelAppliance
Proposed build to suit custom home. Step into a home designed around the way you live. This single-story residence offers the perfect balance of space, comfort, and thoughtful design. Featuring 3 generously sized bedrooms with ensuites, plus a dedicated office, this home is ideal for both everyday living and working from home. The open-concept layout seamlessly connects the kitchen, great room, and dining area—creating a bright, inviting space perfect for entertaining or relaxing with family. The kitchen is the heart of the home, designed with both functionality and style in mind, flowing effortlessly into the expansive, vaulted great room. Large windows invite natural light throughout, enhancing the home’s airy feel. Enjoy outdoor living from not just one, but three patios/porches—perfect for morning coffee, evening gatherings, or simply unwinding in your own private retreat. An oversized garage provides ample space for vehicles, storage, hobbies, or a workshop setup. This is more than a home—it’s an opportunity to tailor every detail to your lifestyle in a beautifully designed, spacious single-story layout. Proposed elevation and floorplan by Mascord Design Associates. Modifications and other plans are available to meet buyer's specifications. Adjacent 3 acre lot available as a build to suit also if a multigenerational site is of interest.