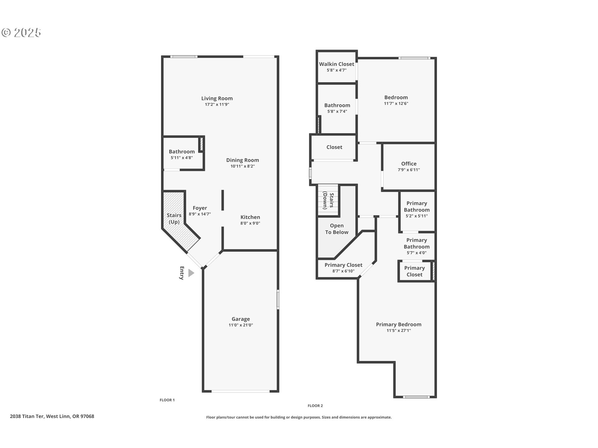
This 2-bedroom, 2.5-bath townhouse in West Linn has a great layout and a surprising amount of space. It’s two stories with an attached garage and a covered front entrance. The main level has a kitchen with an eat-up bar that opens to the living room, where there’s a fireplace and a sliding door that leads out to a big, fenced backyard with a patio—perfect for pets, gardening, or just hanging out. There’s also a half bath on the main floor, which is super convenient. Upstairs, the laundry is right where you need it (no hauling baskets up and down stairs), plus there’s a small office or flex space with a sliding barn door—great for working from home or using as a hobby area. Both bedrooms are upstairs, and each one has its own en suite bathroom and walk-in closet, so it really feels like two primary suites. Whether you’re living with someone or just want extra space, it’s a great setup. Nice spot in West Linn, close to parks, shopping, and easy freeway access. It’s low-maintenance but still gives you that fenced yard and private feel. EV-ready garage with Level 2 charger plus 2 extra parking spots in the extra deep driveway. HOA covers landscaping front and back, exterior maintenance, commons including street maintenance, access to pool, tennis and pickleball courts.
Listing Provided Courtesy of Victoria Gooley, Opt
General Information
266480991
Attached
269
DOM
2
2.5
1420
1985
Clackamas
00367604
Trillium Creek 7/10
Rosemont Ridge 8/10
West Linn 9/10
Residential
Attached
2669 SUNBURST II PHASE 6 LT 5
Listing Provided Courtesy of Victoria Gooley, Opt
Krishna Realty data last checked: Mar 17, 2026 00:38 | Listing last modified Mar 16, 2026 00:21,
Source:
This 2-bedroom, 2.5-bath townhouse in West Linn has a great layout and a surprising amount of space. It’s two stories with an attached garage and a covered front entrance. The main level has a kitchen with an eat-up bar that opens to the living room, where there’s a fireplace and a sliding door that leads out to a big, fenced backyard with a patio—perfect for pets, gardening, or just hanging out. There’s also a half bath on the main floor, which is super convenient. Upstairs, the laundry is right where you need it (no hauling baskets up and down stairs), plus there’s a small office or flex space with a sliding barn door—great for working from home or using as a hobby area. Both bedrooms are upstairs, and each one has its own en suite bathroom and walk-in closet, so it really feels like two primary suites. Whether you’re living with someone or just want extra space, it’s a great setup. Nice spot in West Linn, close to parks, shopping, and easy freeway access. It’s low-maintenance but still gives you that fenced yard and private feel. EV-ready garage with Level 2 charger plus 2 extra parking spots in the extra deep driveway. HOA covers landscaping front and back, exterior maintenance, commons including street maintenance, access to pool, tennis and pickleball courts.