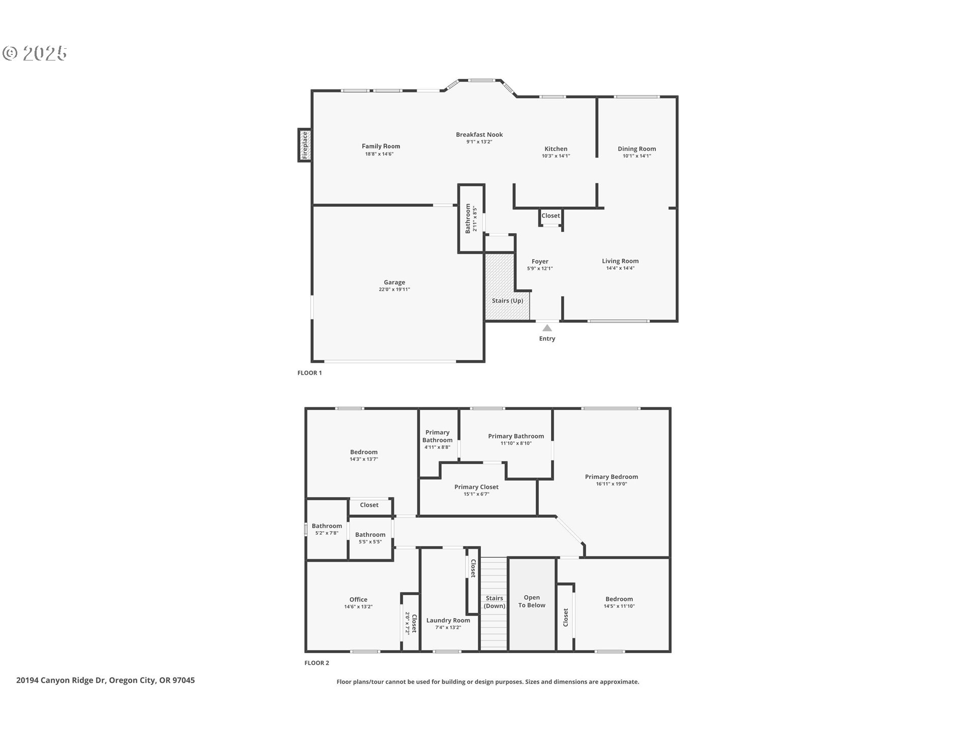
Nestled at the end of a quiet street in Oregon City, this one-owner, beautifully maintained two-story home feels like a private retreat surrounded by mature landscaping and enhanced with quality updates inside and out. Major improvements include a 50-year roof (2019), Leaf Guard gutters (2009), high-efficiency dual-stage heat pump with smart thermostat (2022), and a new gas fireplace with tile surround (2023). The kitchen was fully remodeled in 2018 with custom cabinetry, granite counters, and stainless steel appliances. Bathrooms feature custom vanities, granite, and tile throughout, while the primary suite offers a spa-like experience with skylights, a soaking tub, and walk-in closet. Enjoy abundant natural light throughout, engineered mahogany hardwood floors, and an updated laundry room. Step outside to a fully-fenced backyard with raised garden beds, a Tuff Shed, and a spacious cedar deck made for relaxing and entertaining. Truly move-in ready - schedule your private showing today!
Listing Provided Courtesy of Ryan Cavanagh, Opt
General Information
711503003
SingleFamilyResidence
1
DOM
4
10454.4 SqFt
2.5
2531
1995
Clackamas
01659093
Beavercreek
Tumwata
Oregon City 2/10
Residential
SingleFamilyResidence
3188 BRENDON EST #2 LT 56
Listing Provided Courtesy of Ryan Cavanagh, Opt
Krishna Realty data last checked: Oct 10, 2025 13:31 | Listing last modified Oct 09, 2025 16:12,
Source:
Download our Mobile app
Residence Information
1463
1068
0
2531
trio
2531
1/Gas
4
2
1
2.5
Composition
2, Attached
Stories2
Driveway,OffStreet
2
1995
No
CementSiding
CrawlSpace
RVParking,RVBoatStorage
CrawlSpace
ConcretePerimeter
DoublePaneWindows,Vi
MaintenanceGrounds
Features and Utilities
BuiltinOven, BuiltinRange, Dishwasher, FreeStandingRefrigerator, Granite, Island, Microwave, StainlessSteel
Nestled at the end of a quiet street in Oregon City, this one-owner, beautifully maintained two-story home feels like a private retreat surrounded by mature landscaping and enhanced with quality updates inside and out. Major improvements include a 50-year roof (2019), Leaf Guard gutters (2009), high-efficiency dual-stage heat pump with smart thermostat (2022), and a new gas fireplace with tile surround (2023). The kitchen was fully remodeled in 2018 with custom cabinetry, granite counters, and stainless steel appliances. Bathrooms feature custom vanities, granite, and tile throughout, while the primary suite offers a spa-like experience with skylights, a soaking tub, and walk-in closet. Enjoy abundant natural light throughout, engineered mahogany hardwood floors, and an updated laundry room. Step outside to a fully-fenced backyard with raised garden beds, a Tuff Shed, and a spacious cedar deck made for relaxing and entertaining. Truly move-in ready - schedule your private showing today!