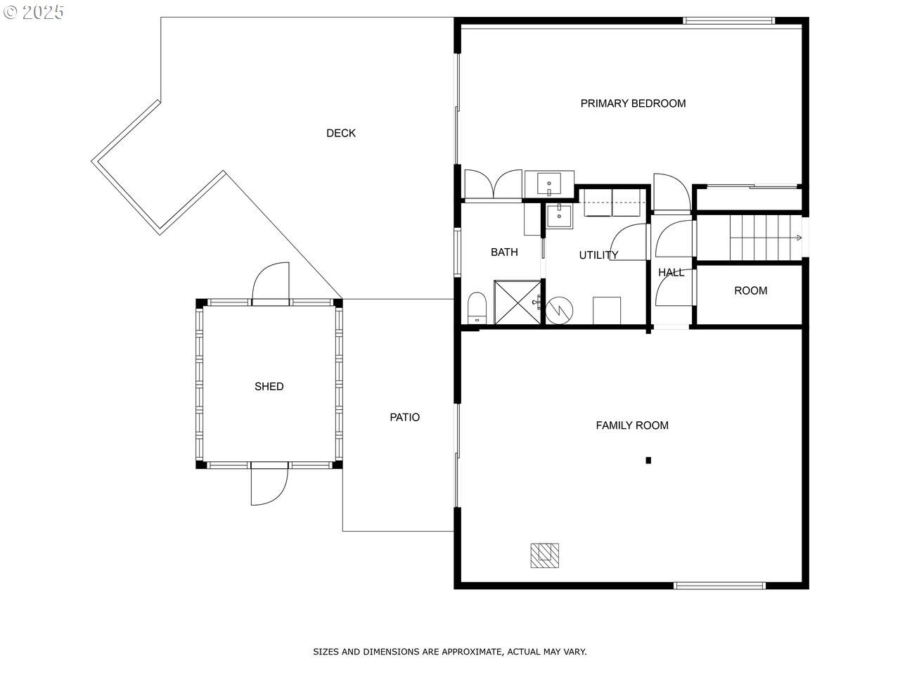
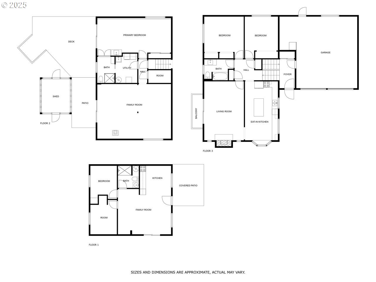
Wow. Rare private family oasis backs to creek greenspace! Quiet and tranquil wooded acreage just mins from Sandy shopping, parks, schools, shopping. Balcony deck overlooks 2.4 acres that back to Little Tickle Creek. Could easily be a 4-5 BRM home. RECENT UPDATES INCLUDE: a gorgeous island kitchen, FULL BATHROOM MAKEOVER + UTILITY ROOM. Newer roof, exterior paint. Updated HVAC, high-efficiency vinyl windows, Ttrex decks. Lower level could be 2nd living area with private entrance and full bath. Osized garage and carport/pet run. Huge Deck, pergola entertainment hub, covered grilling station, greenhouse. Wow! A fenced and cross-fenced yard is a perfect location for goats/chickens/hobbie toys. Convenient wrap-around drive leads to private shop building with covered front patio. It was a business with parking spaces. Has power so could be converted to AirBNB, yoga, gym, she/he shed, business. Is setup for a potential kitchen/bath/2 bedrooms. Ask the agent for details. Amazing, supportive neighbors on this quiet, private road. Come get away and build your secure compound or private family farm/ forest oasis.NOTE: Sq footage includes 550 sq ft 2 BRM ADU. Has electric, kitchen, bath fixtures, but no water or septic yet. See floorplans for details. Previous buyer could not sell contingent house. Still trying while we are back on market.
Listing Provided Courtesy of Greg Walczyk, Walczyk Associates Realty
General Information
148043283
SingleFamilyResidence
116
DOM
3
2.4 acres
2
2784
1975
SFR
Clackamas
00668879
Sandy 6/10
Cedar Ridge 7/10
Sandy 6/10
Residential
SingleFamilyResidence
1447 MEADOWLARK HILLS PT LT 6
Listing Provided Courtesy of Greg Walczyk, Walczyk Associates Realty
Krishna Realty data last checked: Nov 15, 2025 03:48 | Listing last modified Nov 14, 2025 15:37,
Source:
Download our Mobile app
Residence Information
0
1692
1092
2784
County
1692
2/Gas
3
2
0
2
Composition
2, Oversized
Split
Driveway
2
1975
No
Cedar, T111Siding
Features and Utilities
Balcony, Fireplace
BuiltinRange, Dishwasher, FreeStandingRefrigerator, Granite, Island
Laundry
Deck, FreeStandingHotTub, WaterFeature, Yard
CentralAir
Electricity
ForcedAir, WoodStove
SepticTank
Electricity
Electricity
Financial
3814.77
0
Cash,Conventional,FHA,USDALoan,VALoan
07-22-2025
No
No
Comparable Information
116
116
Cash,Conventional,FHA,USDALoan,VALoan
$749,950
$699,950
Nov 14, 2025 15:37
Schools
public Elementary : Sandy
6/10Ratingspublic Middle : Cedar Ridge
7/10Ratingspublic High : Sandy
6/10Ratings
Wow. Rare private family oasis backs to creek greenspace! Quiet and tranquil wooded acreage just mins from Sandy shopping, parks, schools, shopping. Balcony deck overlooks 2.4 acres that back to Little Tickle Creek. Could easily be a 4-5 BRM home. RECENT UPDATES INCLUDE: a gorgeous island kitchen, FULL BATHROOM MAKEOVER + UTILITY ROOM. Newer roof, exterior paint. Updated HVAC, high-efficiency vinyl windows, Ttrex decks. Lower level could be 2nd living area with private entrance and full bath. Osized garage and carport/pet run. Huge Deck, pergola entertainment hub, covered grilling station, greenhouse. Wow! A fenced and cross-fenced yard is a perfect location for goats/chickens/hobbie toys. Convenient wrap-around drive leads to private shop building with covered front patio. It was a business with parking spaces. Has power so could be converted to AirBNB, yoga, gym, she/he shed, business. Is setup for a potential kitchen/bath/2 bedrooms. Ask the agent for details. Amazing, supportive neighbors on this quiet, private road. Come get away and build your secure compound or private family farm/ forest oasis.NOTE: Sq footage includes 550 sq ft 2 BRM ADU. Has electric, kitchen, bath fixtures, but no water or septic yet. See floorplans for details. Previous buyer could not sell contingent house. Still trying while we are back on market.