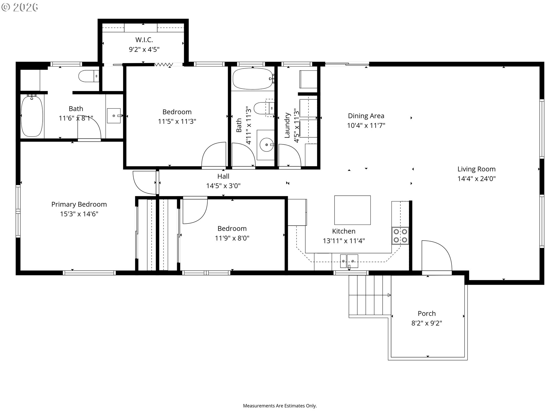
Welcome to this beautifully remodeled modern manufactured home offering 3-bedrooms and 2-bathrooms with spacious bedrooms and a bright, open feel that makes the home both inviting and functional.The kitchen has been thoughtfully updated with elegant quartz countertops, brand-new cabinetry, and sleek stainless steel appliances, including a range, refrigerator, and dishwasher. New lighting throughout and fresh interior paint create a warm, modern atmosphere that feels fresh and move-in ready.This home has undergone an extensive renovation, with all drywall replaced and the interior remodeled down to the studs, subfloor and complete layout change giving buyers the confidence of a truly refreshed home with modern finishes and thoughtful craftsmanship. You will have peace of mind and comfort knowing you have a 5 year old roof, all new windows, heating and cooling, and all appliances & washer/dryer is included. Located within a well-established and well-maintained community, residents enjoy a peaceful setting with convenient amenities. The monthly park rent of $970 includes sewer, garbage, and commons maintenance helping simplify maintenance and everyday living.If you’re looking for a beautifully updated home that blends modern design with comfort and convenience, this one is a must-see. Stop by the Open House on Saturday 3/14 from 12-2pm!
Listing Provided Courtesy of Etni Ruiz, Berkshire Hathaway HomeServices NW Real Estate
General Information
160137962
ManufacturedHomeinPark
22
DOM
3
2
1404
1980
Clackamas
01213859
Bilquist 7/10
Kraxberger
Putnam 5/10
Residential
ManufacturedHomeinPark
22E08DD00101
Listing Provided Courtesy of Etni Ruiz, Berkshire Hathaway HomeServices NW Real Estate
Krishna Realty data last checked: Apr 03, 2026 11:56 | Listing last modified Apr 02, 2026 20:26,
Source:
Open House
Sat, Apr 4th, 10AM to 12PM
Download our Mobile app
Residence Information
0
1404
0
1404
TRIO
1404
3
2
0
2
Shingle
ManufacturedHome,Modern
1
1980
No
MetalSiding, VinylSiding
DoublePaneWindows,Vi
Commons, FrontYardLan
Features and Utilities
Dishwasher, Disposal, FreeStandingRange, FreeStandingRefrigerator, Island, Quartz, Tile
Welcome to this beautifully remodeled modern manufactured home offering 3-bedrooms and 2-bathrooms with spacious bedrooms and a bright, open feel that makes the home both inviting and functional.The kitchen has been thoughtfully updated with elegant quartz countertops, brand-new cabinetry, and sleek stainless steel appliances, including a range, refrigerator, and dishwasher. New lighting throughout and fresh interior paint create a warm, modern atmosphere that feels fresh and move-in ready.This home has undergone an extensive renovation, with all drywall replaced and the interior remodeled down to the studs, subfloor and complete layout change giving buyers the confidence of a truly refreshed home with modern finishes and thoughtful craftsmanship. You will have peace of mind and comfort knowing you have a 5 year old roof, all new windows, heating and cooling, and all appliances & washer/dryer is included. Located within a well-established and well-maintained community, residents enjoy a peaceful setting with convenient amenities. The monthly park rent of $970 includes sewer, garbage, and commons maintenance helping simplify maintenance and everyday living.If you’re looking for a beautifully updated home that blends modern design with comfort and convenience, this one is a must-see. Stop by the Open House on Saturday 3/14 from 12-2pm!