Milwaukie, 97267
4 Bed
4 Bath
2884 SqFt
9 DOM
Built: 1910
$650,000















































$650000
4 Bed
4 Bath
2884 SqFt
9 DOM
Built: 1910
Principal Broker
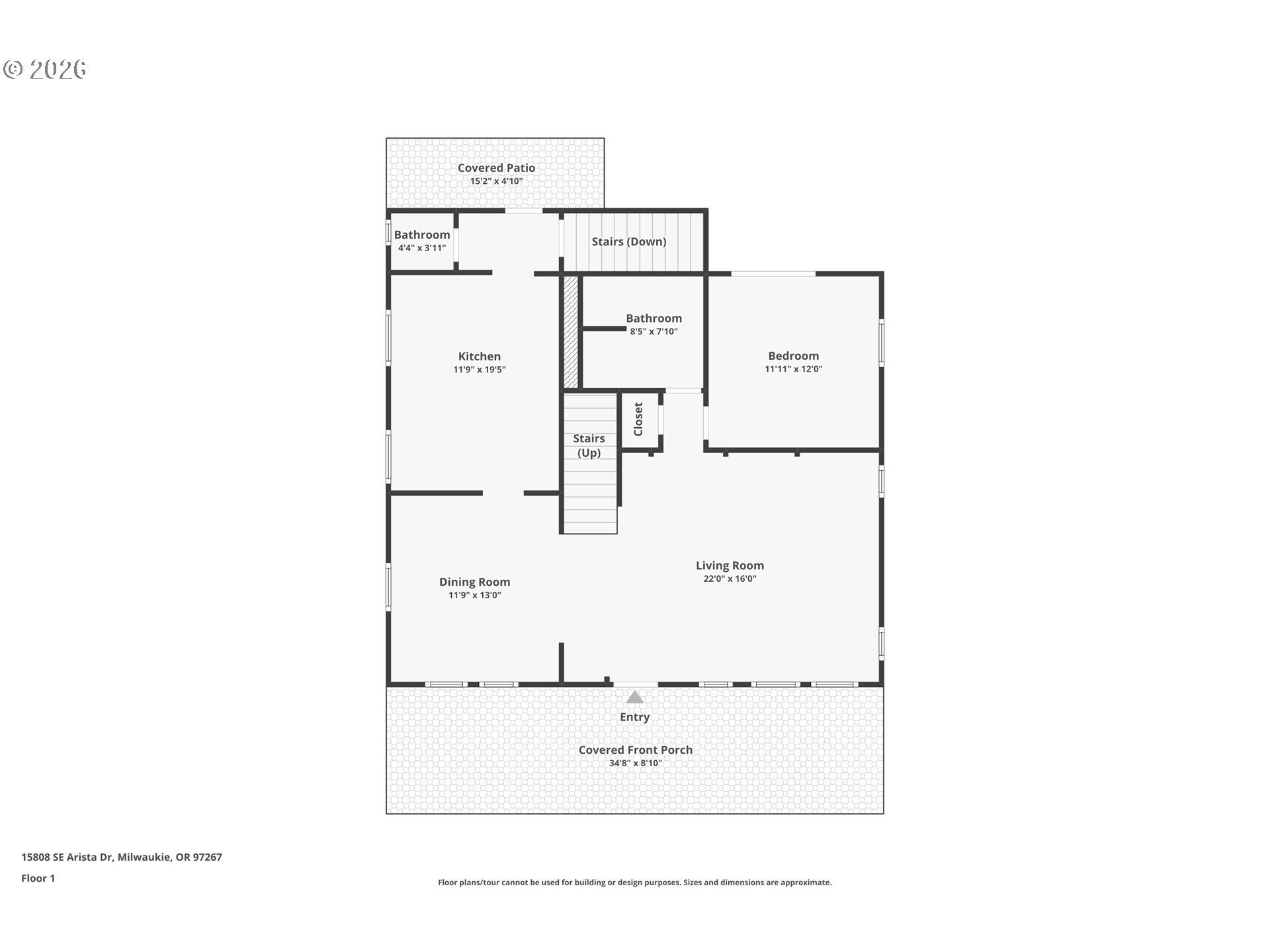
(503) 893-8874Endless Possibilities! Timeless character and unmatched opportunity. The moment you arrive; the charm is undeniable. Picture yourself gently swinging on the expansive front porch, morning coffee in hand, watching neighbors stroll along the Trolley Trail with their dogs as the day begins. It’s the kind of setting that feels like a page from a storybook. Inside, old-world elegance with box beam ceilings anchors the formal living room, where a wood-burning fireplace invites cozy evenings. Classic built-ins grace the dining room, offering both beauty and function, while original wood floors rest beneath the carpet — ready to be revealed and restored to their full glory. The main level offers a bedroom, 1 full bath, a half bath, a charming kitchen featuring a breakfast nook — perfect for casual mornings. Upstairs, you’ll find three additional bedrooms, a full bath, and an expansive loft-style family room, an ideal retreat for movie nights, a home office, creative studio, or play space. Outside offers so many options. A remarkable 36’ x 30’ shop opens up a world of opportunity with a half bath, 220 electrical, private office, and three garage doors including one at RV-height. This space is ready for serious hobbies, business use, storage, or all the above and a carport adds even more versatility. The backyard is where imagination truly takes flight. Measuring approximately 65 feet wide & 110 feet deep from shop to fence and a 22-foot driveway offers extraordinary flexibility. Envision a private soccer field, an urban farm or secure parking for work vehicles. Explore the development potential in the front and or backyard using middle housing. Endless possibility
Listing Provided Courtesy of John McClung, Harcourts Real Estate Network Group
155159503
SingleFamilyResidence
9 DOM
4
0.52 acres
4
2884
1910
Clackamas
00286470
Riverside 2/10
Alder Creek
Putnam 5/10
Residential
SingleFamilyResidence
225 CONCORD PT LT 48
Listing Provided Courtesy of John McClung, Harcourts Real Estate Network Group
Krishna Realty data last checked: Feb 21, 2026 20:28 | Listing last modified Feb 21, 2026 11:00,
Source:
Download our Mobile app
1442
1442
0
2884
trio
2884
1/Gas
4
2
2
4
Composition
6, Detached, Oversized
Stories2,Traditional
Driveway,RVAccessPar
2
1910
No
ShakeSiding, WoodSiding
FullBasement,Unfinished
RVParking,RVBoatStorage
FullBasement,Unfinis
ConcretePerimeter,Sl
DoublePaneWindows,Vi
BeamedCeilings, Fireplace, LivingRoomDiningRoomCombo
Dishwasher, Disposal, FreeStandingRefrigerator, Microwave, StainlessSteelAppliance
GarageDoorOpener, JettedTub, Laundry, VinylFloor, WalltoWallCarpet, WasherDryer, WoodFloors
Fenced, Patio, Porch, RVParking, RVBoatStorage, Workshop, Yard
GarageonMain, MainFloorBedroomBath, WalkinShower
CentralAir
Gas
ForcedAir
PublicSewer
Gas
Gas
5907.38
0
Cash,Conventional,FHA,VALoan
02-12-2026
No
No
02-21-2026
9
9
Cash,Conventional,FHA,VALoan
$650,000
$650,000
Feb 21, 2026 11:00
Listing courtesy of Harcourts Real Estate Network Group.
The content relating to real estate for sale on this site comes in part from the IDX program of the RMLS of Portland, Oregon.
Real Estate listings held by brokerage firms other than this firm are marked with the RMLS logo, and
detailed information about these properties include the name of the listing's broker.
Listing content is copyright © 2019 RMLS of Portland, Oregon.
All information provided is deemed reliable but is not guaranteed and should be independently verified.
Krishna Realty data last checked: Feb 21, 2026 20:28 | Listing last modified Feb 21, 2026 11:00.
Some properties which appear for sale on this web site may subsequently have sold or may no longer be available.
Principal Broker
(503) 893-8874Endless Possibilities! Timeless character and unmatched opportunity. The moment you arrive; the charm is undeniable. Picture yourself gently swinging on the expansive front porch, morning coffee in hand, watching neighbors stroll along the Trolley Trail with their dogs as the day begins. It’s the kind of setting that feels like a page from a storybook. Inside, old-world elegance with box beam ceilings anchors the formal living room, where a wood-burning fireplace invites cozy evenings. Classic built-ins grace the dining room, offering both beauty and function, while original wood floors rest beneath the carpet — ready to be revealed and restored to their full glory. The main level offers a bedroom, 1 full bath, a half bath, a charming kitchen featuring a breakfast nook — perfect for casual mornings. Upstairs, you’ll find three additional bedrooms, a full bath, and an expansive loft-style family room, an ideal retreat for movie nights, a home office, creative studio, or play space. Outside offers so many options. A remarkable 36’ x 30’ shop opens up a world of opportunity with a half bath, 220 electrical, private office, and three garage doors including one at RV-height. This space is ready for serious hobbies, business use, storage, or all the above and a carport adds even more versatility. The backyard is where imagination truly takes flight. Measuring approximately 65 feet wide & 110 feet deep from shop to fence and a 22-foot driveway offers extraordinary flexibility. Envision a private soccer field, an urban farm or secure parking for work vehicles. Explore the development potential in the front and or backyard using middle housing. Endless possibility