Uncover the potential of this rare opportunity to build your custom home on a a tranquil, wooded ravine, near the Tualatin River. Sitting at the end of a quiet road and among the serenity of the trees, this location offers the perfect canvas for your custom dream home. You'll find a balance of nature and privacy, in one of the area's most sought-after neighborhoods all while being minutes from I-205, Lake Oswego and the heart of West Linn. Partner up with a Street of Dreams builder, DreamBuilder Custom Homes, to build the proposed home or bring your own vision to life with a fully custom design. DreamBuilder Custom Homes specializes in delivering high-end, personalized residences that reflect the distinct needs and lifestyles of their clients. Known for impeccable craftsmanship and attention to detail, Dreambuilder creates homes that feel as if they’ve always been a part of the landscape—perfectly blending luxury with comfort and practicality.
Listing Provided Courtesy of Jennifer Metzler, Urban Pacific Real Estate
General Information
720736684
SingleFamilyResidence
244
DOM
4
0.58 acres
4.5
4343
2025
Clackamas
00358026
Stafford 10/10
Meridian Creek
West Linn 9/10
Residential
SingleFamilyResidence
540 SHADOW WOOD PARK LTS 1 & 2 BLK 7 LT 31 BLK 3
Listing Provided Courtesy of Jennifer Metzler, Urban Pacific Real Estate
Krishna Realty data last checked: Sep 30, 2025 16:21 | Listing last modified Sep 29, 2025 12:58,
Source:
Download our Mobile app
Residence Information
0
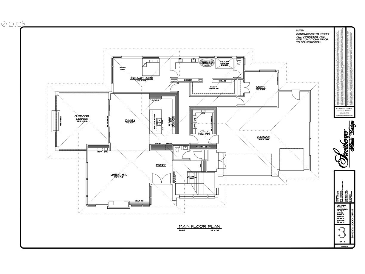
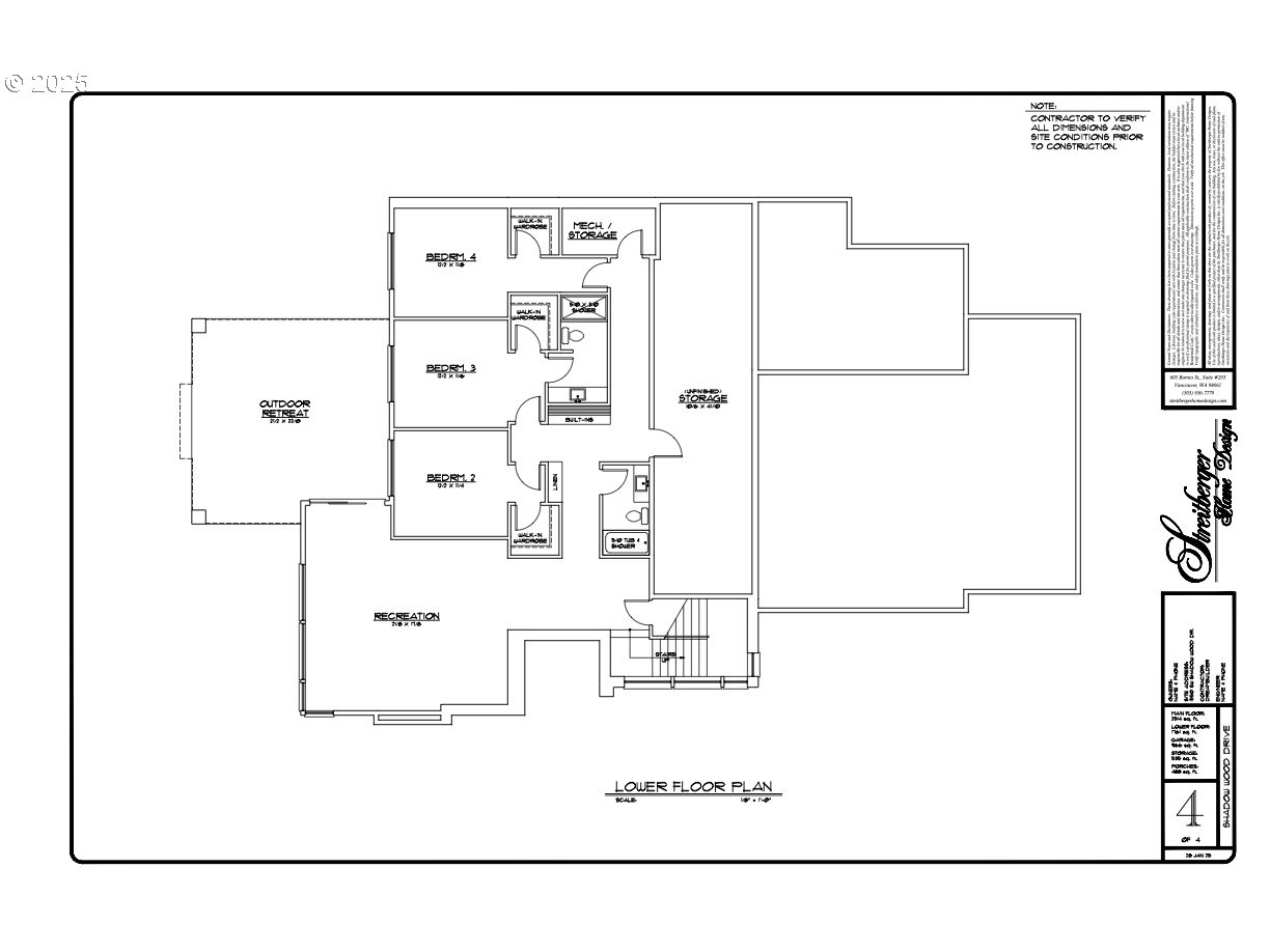
2526
1817
4343
Builder
2526
2/Gas
4
4
1
4.5
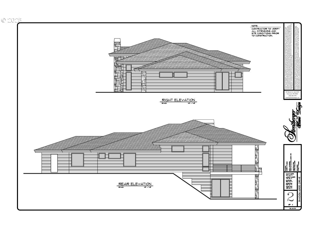
Composition
3, Attached, Oversized
Modern
Driveway
2
2025
No
CementSiding
Daylight,ExteriorEntry
Daylight,ExteriorEnt
Features and Utilities
CentralAir
ForcedAir
SepticTank
Gas
Financial
2037.21
0
Cash,Conventional
01-28-2025
No
No
Comparable Information
244
245
Cash,Conventional
$1,900,000
$1,890,000
Sep 29, 2025 12:58
Schools
public Elementary : Stafford
10/10Ratings Middle : Meridian Creek N/ARatingspublic High : West Linn
9/10Ratings
Uncover the potential of this rare opportunity to build your custom home on a a tranquil, wooded ravine, near the Tualatin River. Sitting at the end of a quiet road and among the serenity of the trees, this location offers the perfect canvas for your custom dream home. You'll find a balance of nature and privacy, in one of the area's most sought-after neighborhoods all while being minutes from I-205, Lake Oswego and the heart of West Linn. Partner up with a Street of Dreams builder, DreamBuilder Custom Homes, to build the proposed home or bring your own vision to life with a fully custom design. DreamBuilder Custom Homes specializes in delivering high-end, personalized residences that reflect the distinct needs and lifestyles of their clients. Known for impeccable craftsmanship and attention to detail, Dreambuilder creates homes that feel as if they’ve always been a part of the landscape—perfectly blending luxury with comfort and practicality.