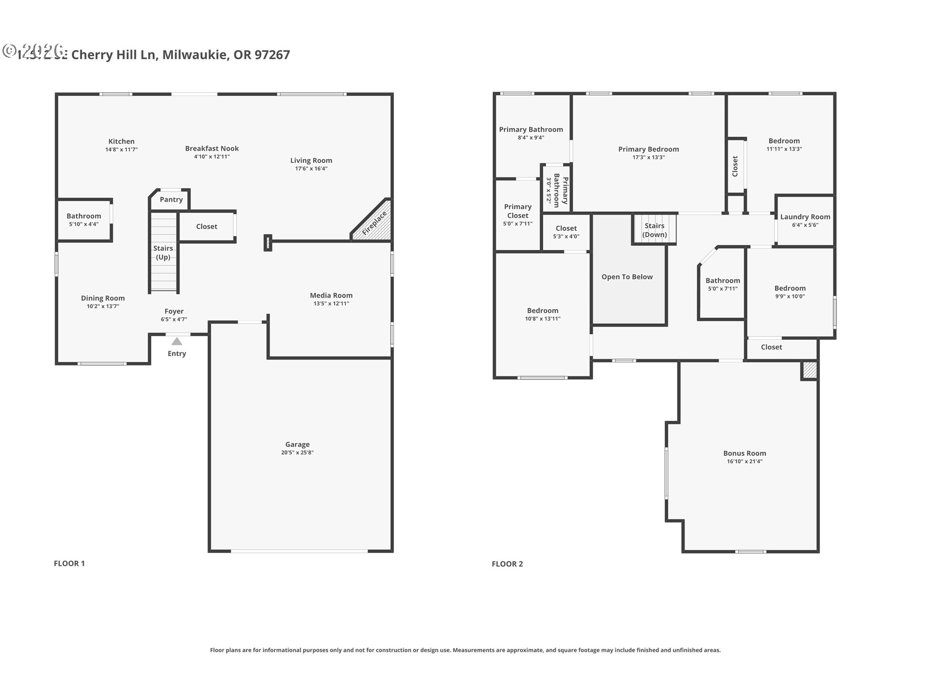
Step into a home that offers space, comfort, and thoughtful design in the well-established Greenbrier neighborhood. This 4-bedroom, 2.5-bath home sits on a desirable .16-acre corner lot and offers 2,743 square feet of functional living space designed for everyday living and entertaining. The main level welcomes you with 9-foot ceilings and a grand foyer that sets the tone for the rest of the home. The layout flows naturally into the living and dining areas, where large windows and skylights bring in natural light and create a warm, inviting feel. The kitchen is well-equipped with stainless steel appliances, quartz countertops, a center island, and a butler’s pantry, adding extra prep space and storage to keep everything organized and within reach. Upstairs, the spacious primary suite offers a relaxing retreat with a soaking tub, separate shower, walk-in closet with built-ins, and a generous layout. The additional bedrooms provide flexibility for a variety of uses, while the massive loft bonus room stands out as a versatile space for work, recreation, media, or relaxation.8-foot French doors lead to the fenced backyard, designed for enjoyment with a covered patio that’s perfect for gatherings or quiet evenings. The outdoor space includes a cherry tree, pear tree, and grapevines, all that fruit, adding seasonal beauty and homegrown enjoyment. The landscaping is well maintained, enhancing the curb appeal of this corner-lot property. Additional highlights include a two-car garage, A/C, professionally installed electric vehicle charger, new roof, and 8.32 kW solar array. With its combination of space, features, and location, this home is ready for its next chapter. Schedule a showing to experience everything it has to offer.
Listing Provided Courtesy of Natalya Oreste, Berkshire Hathaway HomeServices NW Real Estate
General Information
750526597
SingleFamilyResidence
0
DOM
4
6969.6 SqFt
2.5
2743
2004
R7
Clackamas
05008114
View Acres 5/10
Alder Creek
Putnam 5/10
Residential
SingleFamilyResidence
SUBDIVISION GREENBRIER LT 39 3816
Listing Provided Courtesy of Natalya Oreste, Berkshire Hathaway HomeServices NW Real Estate
Krishna Realty data last checked: Apr 08, 2026 11:46 | Listing last modified Apr 08, 2026 09:03,
Source:
Open House
Sat, Apr 11th, 11AM to 1PM
Sun, Apr 12th, 11AM to 1PM
Download our Mobile app
Residence Information
1280
1463
0
2743
County
2743
1/Gas
4
2
1
2.5
Composition
2, Attached
Stories2,Traditional
Driveway
2
2004
No
CarChargingStation,Solar
VinylSiding
CrawlSpace
CrawlSpace
ConcretePerimeter
DoublePaneWindows,Vi
Commons, Management
Features and Utilities
Fireplace, HardwoodFloors
ButlersPantry, Dishwasher, Disposal, Island, Microwave
Step into a home that offers space, comfort, and thoughtful design in the well-established Greenbrier neighborhood. This 4-bedroom, 2.5-bath home sits on a desirable .16-acre corner lot and offers 2,743 square feet of functional living space designed for everyday living and entertaining. The main level welcomes you with 9-foot ceilings and a grand foyer that sets the tone for the rest of the home. The layout flows naturally into the living and dining areas, where large windows and skylights bring in natural light and create a warm, inviting feel. The kitchen is well-equipped with stainless steel appliances, quartz countertops, a center island, and a butler’s pantry, adding extra prep space and storage to keep everything organized and within reach. Upstairs, the spacious primary suite offers a relaxing retreat with a soaking tub, separate shower, walk-in closet with built-ins, and a generous layout. The additional bedrooms provide flexibility for a variety of uses, while the massive loft bonus room stands out as a versatile space for work, recreation, media, or relaxation.8-foot French doors lead to the fenced backyard, designed for enjoyment with a covered patio that’s perfect for gatherings or quiet evenings. The outdoor space includes a cherry tree, pear tree, and grapevines, all that fruit, adding seasonal beauty and homegrown enjoyment. The landscaping is well maintained, enhancing the curb appeal of this corner-lot property. Additional highlights include a two-car garage, A/C, professionally installed electric vehicle charger, new roof, and 8.32 kW solar array. With its combination of space, features, and location, this home is ready for its next chapter. Schedule a showing to experience everything it has to offer.