Canby, 97013
4 Bed
2.5 Bath
1915 SqFt
2 DOM
Built: 1998
$575,000
$575000
4 Bed
2.5 Bath
1915 SqFt
2 DOM
Built: 1998
Principal Broker
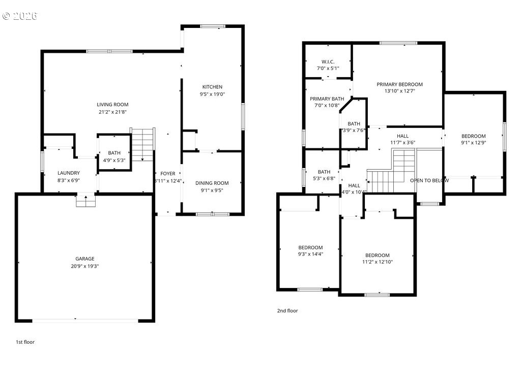
(503) 893-8874Beautifully designed 4 bed, 2.5 bath, 1,915sqft home in the heart of Canby. This home offers a great room floor plan that is a perfect blend of openness and functionality. The main level features a spacious great room ideal for gathering and entertaining, a formal dining area for special occasions, a half bath, laundry room, and a bright kitchen with a cozy breakfast nook. Living room offers plenty of natural light with its big windows and a gas fireplace. Upstairs, you’ll find 2 deluxe skylights for plenty of natural light, 3 generously sized bedrooms, providing comfort and privacy for everyone, full hallway bathroom & a large primary or 4th bedroom with a full shower & heated tile floors. The home showcases extensive oak flooring, elegant white woodwork, and durable tile countertops, creating a timeless and inviting aesthetic throughout. Enjoy impressive 9-foot ceilings on the main level, enhancing the home’s light and airy feel. Step outside to a large fully fenced backyard, perfect for entertaining, gardening, or simply relaxing. This home truly combines classic style and everyday comfort! Home offers community pool.
Listing Provided Courtesy of Eduardo Reyes, Keller Williams Realty Portland Premiere
548624036
SingleFamilyResidence
2 DOM
4
2.5
1915
1998
Clackamas
01739382
Lee 7/10
Baker Prairie 2/10
Canby 5/10
Residential
SingleFamilyResidence
3291 TOFTE FARMS LT 35
Listing Provided Courtesy of Eduardo Reyes, Keller Williams Realty Portland Premiere
Krishna Realty data last checked: Mar 21, 2026 05:20 | Listing last modified Feb 28, 2026 09:49,
Source:
Download our Mobile app
950
965
0
1915
trio
1915
1/Gas
4
2
1
2.5
Shingle
2, Attached
Stories1
Driveway
2
1998
No
LapSiding
CrawlSpace
CrawlSpace
Skirting
VinylFrames
Management, Pool
BuiltinRefrigerator, Dishwasher, FreeStandingGasRange, Granite
HighCeilings, Laundry
Fenced, ToolShed, Yard
GroundLevel
Gas
ForcedAir
PublicSewer
Gas
Gas
5606.95
1
309 / SemiAnnually
Cash,Conventional,FHA
02-26-2026
No
No
2
23
Cash,Conventional,FHA
$575,000
$575,000
Feb 28, 2026 09:49
Listing courtesy of Keller Williams Realty Portland Premiere.
The content relating to real estate for sale on this site comes in part from the IDX program of the RMLS of Portland, Oregon.
Real Estate listings held by brokerage firms other than this firm are marked with the RMLS logo, and
detailed information about these properties include the name of the listing's broker.
Listing content is copyright © 2019 RMLS of Portland, Oregon.
All information provided is deemed reliable but is not guaranteed and should be independently verified.
Krishna Realty data last checked: Mar 21, 2026 05:20 | Listing last modified Feb 28, 2026 09:49.
Some properties which appear for sale on this web site may subsequently have sold or may no longer be available.
Principal Broker
(503) 893-8874Beautifully designed 4 bed, 2.5 bath, 1,915sqft home in the heart of Canby. This home offers a great room floor plan that is a perfect blend of openness and functionality. The main level features a spacious great room ideal for gathering and entertaining, a formal dining area for special occasions, a half bath, laundry room, and a bright kitchen with a cozy breakfast nook. Living room offers plenty of natural light with its big windows and a gas fireplace. Upstairs, you’ll find 2 deluxe skylights for plenty of natural light, 3 generously sized bedrooms, providing comfort and privacy for everyone, full hallway bathroom & a large primary or 4th bedroom with a full shower & heated tile floors. The home showcases extensive oak flooring, elegant white woodwork, and durable tile countertops, creating a timeless and inviting aesthetic throughout. Enjoy impressive 9-foot ceilings on the main level, enhancing the home’s light and airy feel. Step outside to a large fully fenced backyard, perfect for entertaining, gardening, or simply relaxing. This home truly combines classic style and everyday comfort! Home offers community pool.
Download our Mobile app