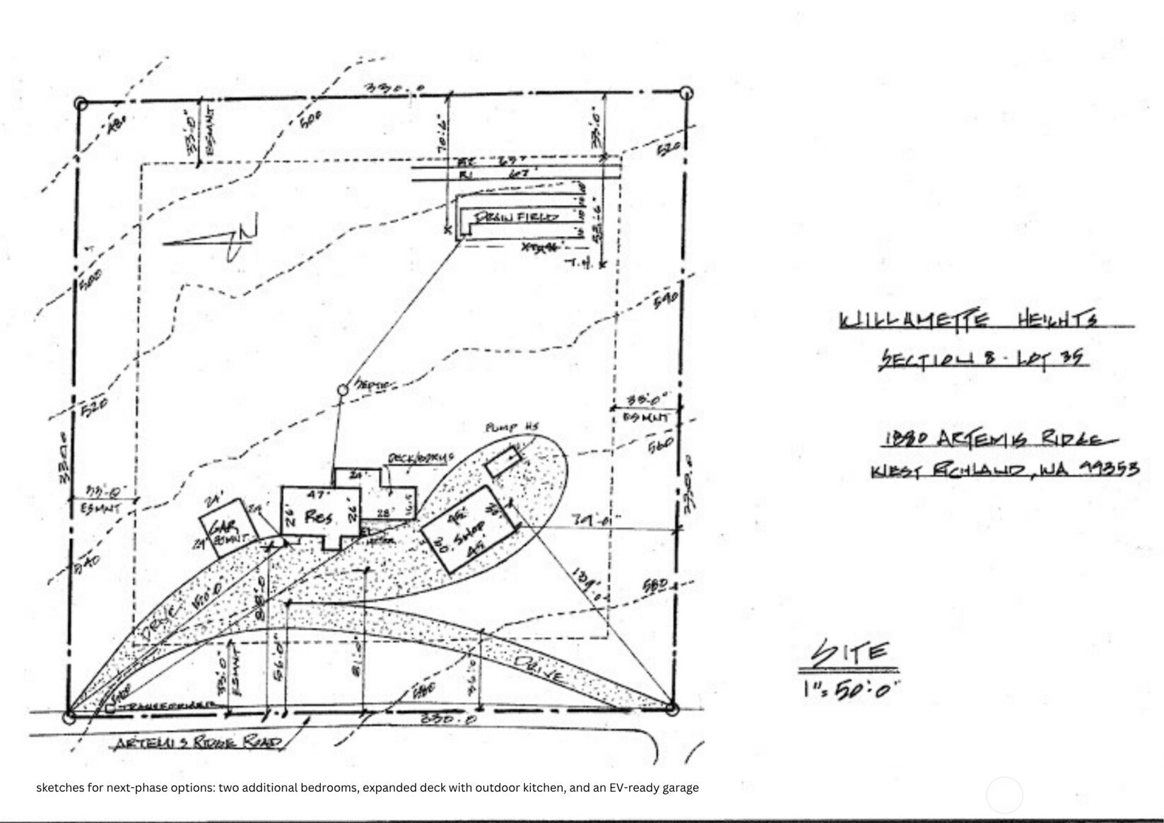
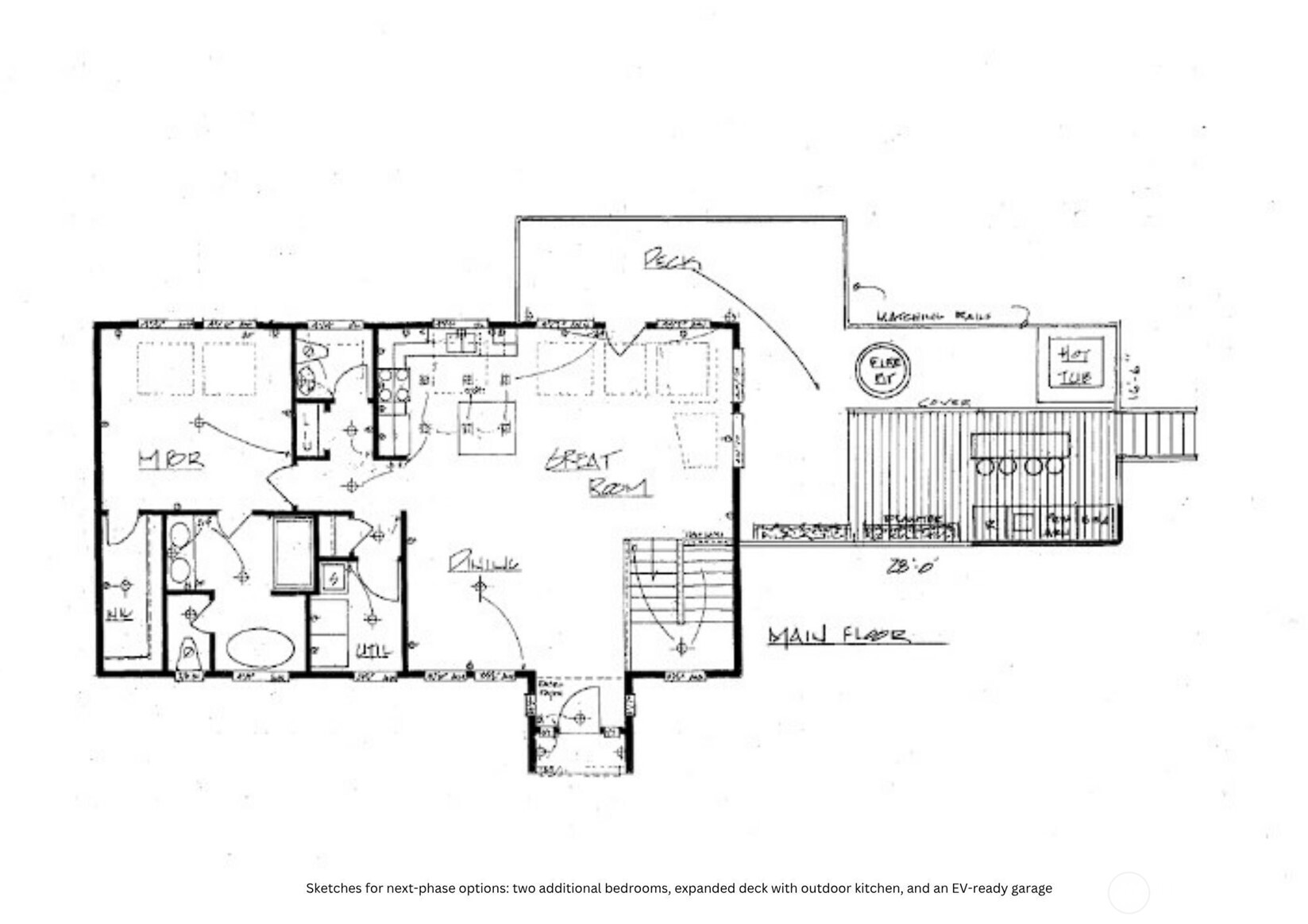
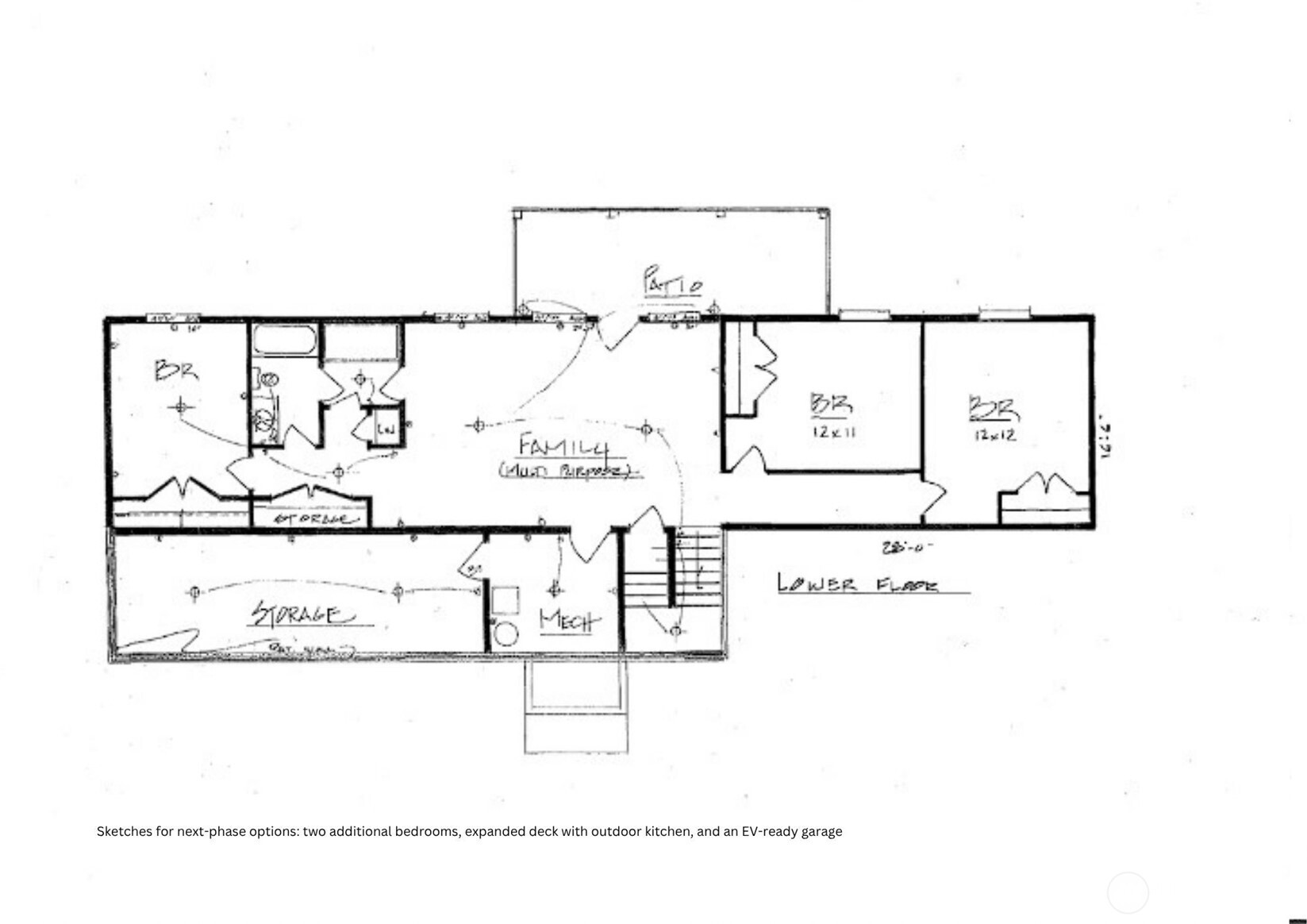
Pacific Northwest luxury on 2.5 serene acres. This 2,401 sq ft net-zero estate features an 8 kW ground-mount solar system and sweeping 235° Yakima River views. Inside, natural hardwood and tile floors flow throughout, marble and granite counters and fully tiled baths/showers. The chef’s kitchen offers quartz surfaces, premium appliances, and an oversized island; the primary suite features a spa bath and walk-in closet. A dedicated gym/wellness space. Outside: expansive decks, a Quonset hut shop with glass drive-through doors, and a detached HVAC-controlled office. See attached sketches for next-phase options: two additional bedrooms, expanded deck with outdoor kitchen, and an EV-ready garage. A rare blend of privacy, and sustainability.
Listing Provided Courtesy of Arielle Hays, ERA Skyview
General Information
NWM2443908
Single Family Residence
7
DOM
2
2.5 acres
1.5
2401
2023
Benton
Residential
Single Family Residence
Listing Provided Courtesy of Arielle Hays, ERA Skyview
Krishna Realty data last checked: Nov 26, 2025 04:49 | Listing last modified Oct 18, 2025 03:58,
Source:
Pacific Northwest luxury on 2.5 serene acres. This 2,401 sq ft net-zero estate features an 8 kW ground-mount solar system and sweeping 235° Yakima River views. Inside, natural hardwood and tile floors flow throughout, marble and granite counters and fully tiled baths/showers. The chef’s kitchen offers quartz surfaces, premium appliances, and an oversized island; the primary suite features a spa bath and walk-in closet. A dedicated gym/wellness space. Outside: expansive decks, a Quonset hut shop with glass drive-through doors, and a detached HVAC-controlled office. See attached sketches for next-phase options: two additional bedrooms, expanded deck with outdoor kitchen, and an EV-ready garage. A rare blend of privacy, and sustainability.