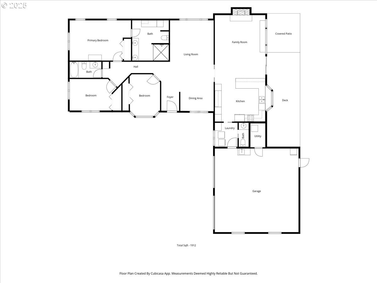
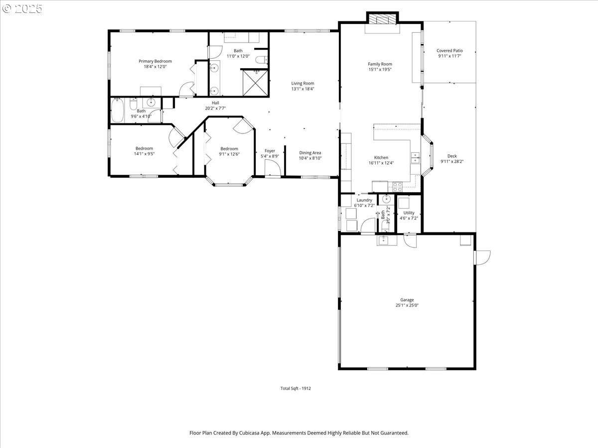
Welcome to this custom-built, single-level home that truly defines comfort and convenience. Warm, welcoming, and fully handicap accessible, this residence has been impeccably maintained and is move-in ready. The functional layout features three bedrooms, two full plus one half bathrooms, including a primary bath with a roll-in shower and accessible sink. Enjoy spacious common areas with a formal living room and a versatile family/great room. Outside, the large, beautifully landscaped lot offers a fantastic 26' x 28' second garage/shop and loads of parking, making it an entertainer's and gardener's dream!
Listing Provided Courtesy of Joni McCreith, Bella Casa Real Estate Group
General Information
177584269
SingleFamilyResidence
41
DOM
3
0.43 acres
2.5
1922
1993
Benton
009377
Oak Grove 9/10
North Albany 8/10
West Albany 8/10
Residential
SingleFamilyResidence
LOT:14 BLOCK:2 KINGSTON HEIGHTS
Listing Provided Courtesy of Joni McCreith, Bella Casa Real Estate Group
Krishna Realty data last checked: Jan 19, 2026 22:47 | Listing last modified Jan 19, 2026 00:21,
Source:
Welcome to this custom-built, single-level home that truly defines comfort and convenience. Warm, welcoming, and fully handicap accessible, this residence has been impeccably maintained and is move-in ready. The functional layout features three bedrooms, two full plus one half bathrooms, including a primary bath with a roll-in shower and accessible sink. Enjoy spacious common areas with a formal living room and a versatile family/great room. Outside, the large, beautifully landscaped lot offers a fantastic 26' x 28' second garage/shop and loads of parking, making it an entertainer's and gardener's dream!