Albany, 97321
3 Bed
2.5 Bath
1767 SqFt
169 DOM
Built: 2025
$359,900
Price cut: $38K (02-04-2026)
$359900
Price cut: $38K (02-04-2026)
3 Bed
2.5 Bath
1767 SqFt
169 DOM
Built: 2025
Open House
Principal Broker
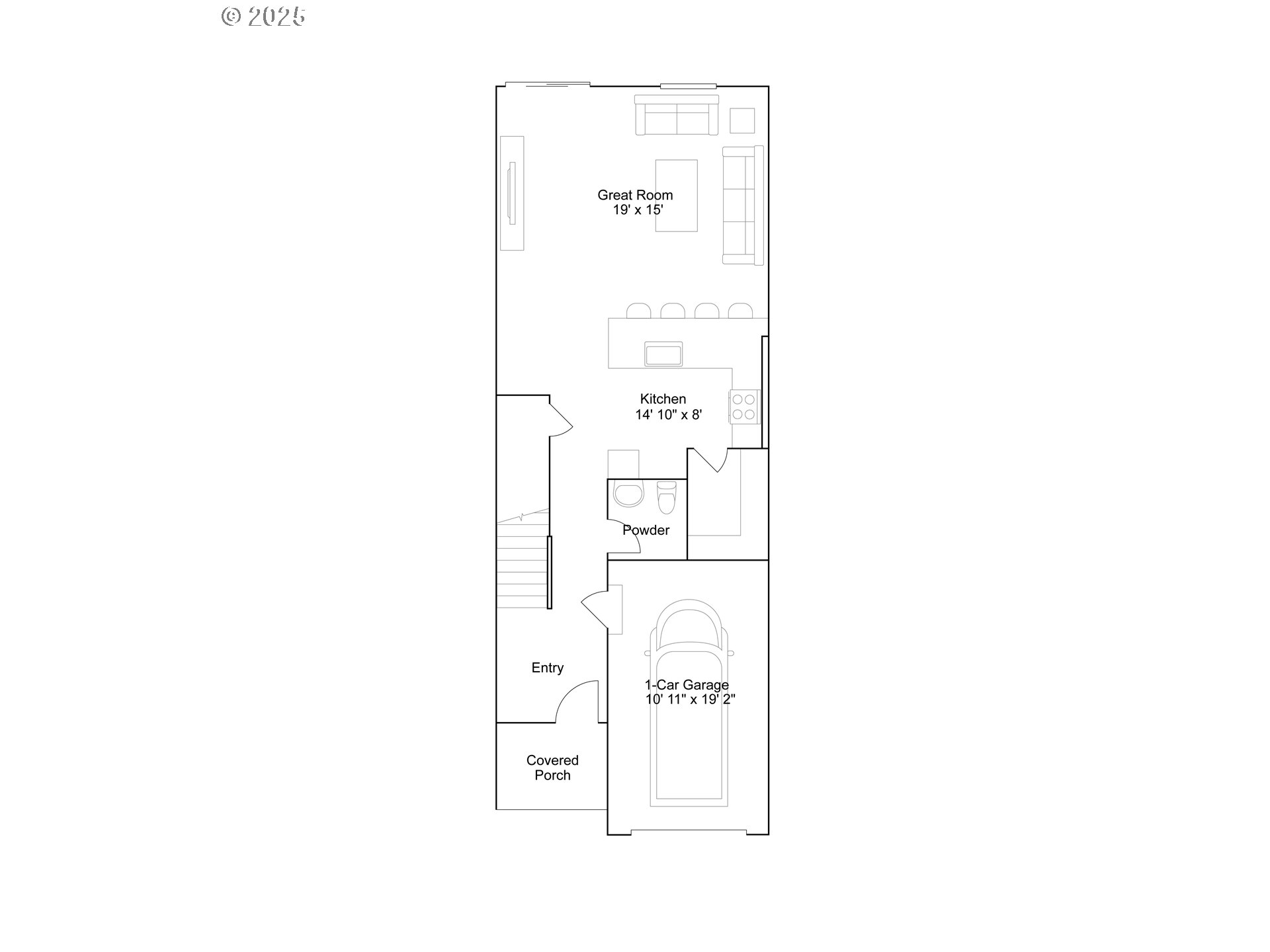
(503) 893-8874Welcome to Riverwood Crossing by Lennar. This new construction Reagan plan presents a modern two-story townhome design with an open-concept first floor that unites the kitchen, dining, and great room areas, ideal for both everyday living and entertaining. Upstairs, a versatile loft separates two secondary bedrooms from the private primary suite, which includes a walk-in closet and an ensuite bath featuring dual vanities. Interior finishes include quartz countertops, Shaker-style cabinets, and LVP (luxury vinyl plank) flooring in the kitchen and bathrooms, plus fencing, landscaping, and sprinkler irrigation for added convenience. This home also includes central air conditioning, a refrigerator, washer and dryer, and blinds—all at no extra cost! Riverwood Crossing is near Gibson Hill Park, Golf Club of Oregon, & historic downtown Albany, with Oregon State University just 20 minutes away. Photos are of actual home. MOVE-IN READY! Homesite: #69. Incentives available with the use of our preferred lender!
Listing Provided Courtesy of Amanda Whiterock, Lennar Sales Corp
526232758
Attached
169 DOM
3
2.5
1767
2025
Benton
New Construction
Oak Grove 9/10
North Albany 8/10
West Albany 8/10
Residential
Attached
Riverwood Crossing, lot 69
Listing Provided Courtesy of Amanda Whiterock, Lennar Sales Corp
Krishna Realty data last checked: Apr 26, 2026 17:18 | Listing last modified Apr 25, 2026 13:34,
Source:
Wed, Apr 29th, 11AM to 4PM
Sun, Apr 26th, 11AM to 4PM
Thu, Apr 30th, 11AM to 4PM
Download our Mobile app
983
784
0
1767
Builder
1767
3
2
1
2.5
Composition
1, Attached
Craftsman,Townhouse
Driveway,OnStreet
2
2025
No
OrientedStrandBoard
CrawlSpace
CrawlSpace
ConcretePerimeter
DoublePaneWindows,Vi
Commons, FrontYardLan
Dishwasher, Disposal, FreeStandingRange, FreeStandingRefrigerator, Pantry, Quartz, StainlessSteelAppliance
Laundry, LuxuryVinylPlank, Quartz, Sprinkler, WalltoWallCarpet, WasherDryer
Fenced, Sprinkler, Yard
GarageonMain, WalkinShower
CentralAir, HeatPump
Electricity, Tank
HeatPump
PublicSewer
Electricity, Tank
Electricity
0
1
164 / Month
Cash,Conventional,FHA,VALoan
11-07-2025
No
No
169
170
Cash,Conventional,FHA,VALoan
$399,900
$359,900
Apr 25, 2026 13:34
Listing courtesy of Lennar Sales Corp.
The content relating to real estate for sale on this site comes in part from the IDX program of the RMLS of Portland, Oregon.
Real Estate listings held by brokerage firms other than this firm are marked with the RMLS logo, and
detailed information about these properties include the name of the listing's broker.
Listing content is copyright © 2019 RMLS of Portland, Oregon.
All information provided is deemed reliable but is not guaranteed and should be independently verified.
Krishna Realty data last checked: Apr 26, 2026 17:18 | Listing last modified Apr 25, 2026 13:34.
Some properties which appear for sale on this web site may subsequently have sold or may no longer be available.
Principal Broker
(503) 893-8874Welcome to Riverwood Crossing by Lennar. This new construction Reagan plan presents a modern two-story townhome design with an open-concept first floor that unites the kitchen, dining, and great room areas, ideal for both everyday living and entertaining. Upstairs, a versatile loft separates two secondary bedrooms from the private primary suite, which includes a walk-in closet and an ensuite bath featuring dual vanities. Interior finishes include quartz countertops, Shaker-style cabinets, and LVP (luxury vinyl plank) flooring in the kitchen and bathrooms, plus fencing, landscaping, and sprinkler irrigation for added convenience. This home also includes central air conditioning, a refrigerator, washer and dryer, and blinds—all at no extra cost! Riverwood Crossing is near Gibson Hill Park, Golf Club of Oregon, & historic downtown Albany, with Oregon State University just 20 minutes away. Photos are of actual home. MOVE-IN READY! Homesite: #69. Incentives available with the use of our preferred lender!
Download our Mobile app