Baker City, 97814
5 Bed
3 Bath
3424 SqFt
2 DOM
Built: 1980
$649,900
$649900
5 Bed
3 Bath
3424 SqFt
2 DOM
Built: 1980
Principal Broker
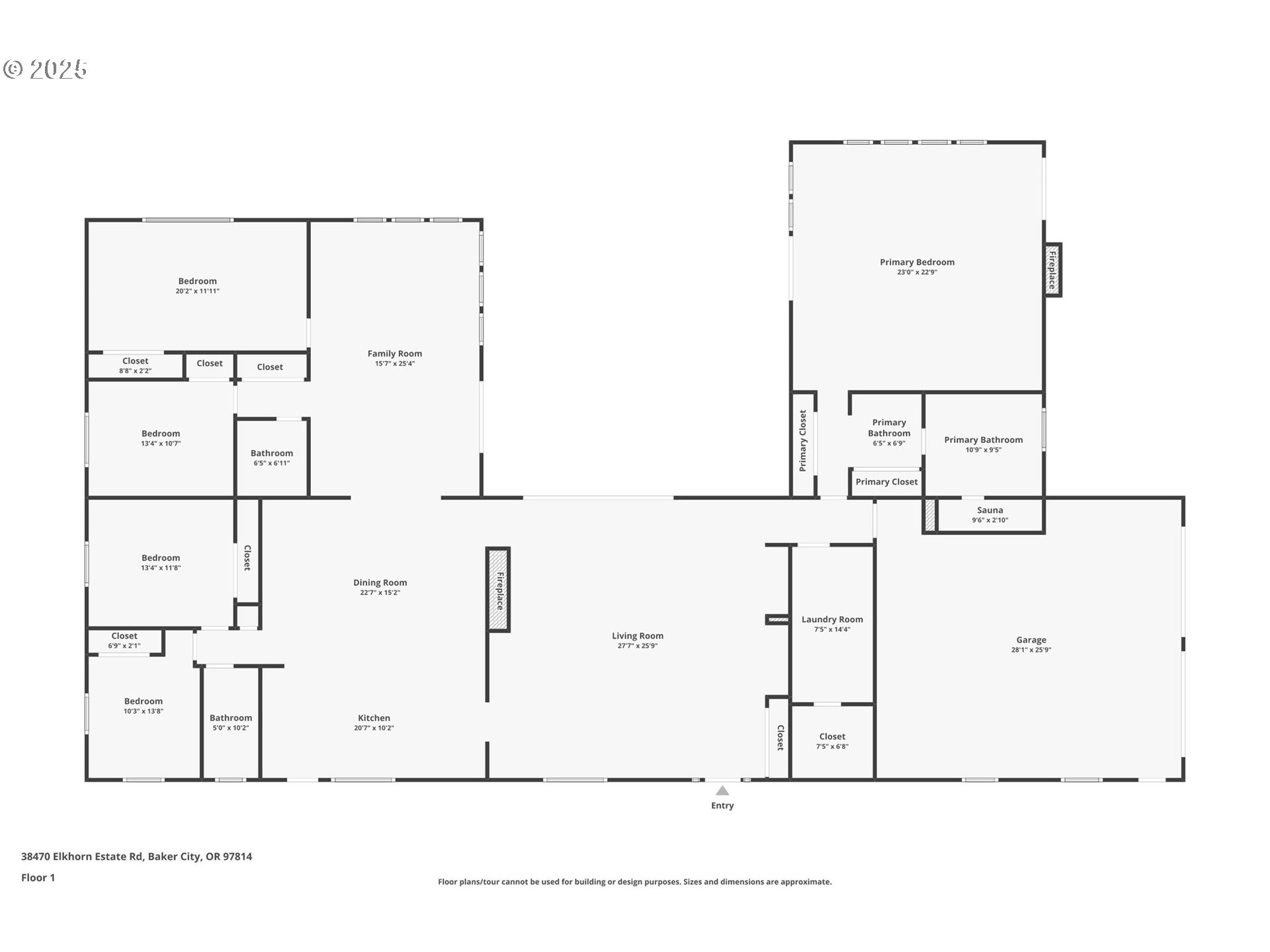
(503) 893-8874Set in the peaceful foothills of the Elkhorn Mountains, this expansive single-level ranch offers 3,424 sq ft of living space on 2.03 acres. With 5 bedrooms and 3 full baths, the home blends comfort, space, and scenic surroundings. Two spacious living areas with oversized windows capture abundant natural light and sweeping views of the meadows and mountains. The kitchen is designed for gathering, featuring granite countertops, an island with seating, and a wet bar or coffee station. The primary suite is a private retreat with its own wood stove, sunken jetted tub, sauna, and dual sliding doors leading to a patio and secluded hot tub area. Additional highlights include dual furnaces, dual water heaters, two wood stoves, and two gas stoves for year-round comfort. Outside, enjoy an attached 2-car garage, outbuilding for storage, RV parking, and a private driveway for added seclusion. Ideally located near Phillips Reservoir, Sumpter, and Baker City with easy access to hunting, fishing, hiking, and ATV/snowmobile trails. A rare opportunity to own a versatile mountain retreat.
Listing Provided Courtesy of Jon McLagan, The Oregon Realty Group
747001427
SingleFamilyResidence
2 DOM
5
2.03 acres
3
3424
1980
RR5
Baker
6506
Brooklyn 3/10
Baker 5/10
Baker 5/10
Residential
SingleFamilyResidence
10S3816BC Tax Lot 1700 AND 1701
Listing Provided Courtesy of Jon McLagan, The Oregon Realty Group
Krishna Realty data last checked: Apr 25, 2026 17:22 | Listing last modified Apr 06, 2026 12:59,
Source:
Download our Mobile app
0
3424
0
3424
BCA
3424
4/Gas
5
3
0
3
Composition
2, Attached
Stories1,Ranch
Driveway
1
1980
No
BoardBattenSiding, Stone
CrawlSpace
RVParking
CrawlSpace
ConcretePerimeter
VinylFrames
Dishwasher, Disposal, FreeStandingRange, FreeStandingRefrigerator, Granite, TrashCompactor
CeilingFan, Granite, JettedTub, Laundry, VinylFloor, WalltoWallCarpet
Deck, Outbuilding, Patio, PrivateRoad, RVParking, Yard
OneLevel
None
Electricity
ForcedAir, GasStove, WoodStove
StandardSeptic
Electricity
Electricity, Propane
3555.13
0
Cash,Conventional,FHA,USDALoan,VALoan
04-04-2026
No
No
2
21
Cash,Conventional,FHA,USDALoan,VALoan
$649,900
$649,900
Apr 06, 2026 12:59
Listing courtesy of The Oregon Realty Group.
The content relating to real estate for sale on this site comes in part from the IDX program of the RMLS of Portland, Oregon.
Real Estate listings held by brokerage firms other than this firm are marked with the RMLS logo, and
detailed information about these properties include the name of the listing's broker.
Listing content is copyright © 2019 RMLS of Portland, Oregon.
All information provided is deemed reliable but is not guaranteed and should be independently verified.
Krishna Realty data last checked: Apr 25, 2026 17:22 | Listing last modified Apr 06, 2026 12:59.
Some properties which appear for sale on this web site may subsequently have sold or may no longer be available.
Principal Broker
(503) 893-8874Set in the peaceful foothills of the Elkhorn Mountains, this expansive single-level ranch offers 3,424 sq ft of living space on 2.03 acres. With 5 bedrooms and 3 full baths, the home blends comfort, space, and scenic surroundings. Two spacious living areas with oversized windows capture abundant natural light and sweeping views of the meadows and mountains. The kitchen is designed for gathering, featuring granite countertops, an island with seating, and a wet bar or coffee station. The primary suite is a private retreat with its own wood stove, sunken jetted tub, sauna, and dual sliding doors leading to a patio and secluded hot tub area. Additional highlights include dual furnaces, dual water heaters, two wood stoves, and two gas stoves for year-round comfort. Outside, enjoy an attached 2-car garage, outbuilding for storage, RV parking, and a private driveway for added seclusion. Ideally located near Phillips Reservoir, Sumpter, and Baker City with easy access to hunting, fishing, hiking, and ATV/snowmobile trails. A rare opportunity to own a versatile mountain retreat.
Download our Mobile app